Công nghệ tách dầu, mỡ chuyên sâu - Nguyên lý, tính toán và thế kế hệ thống tách dầu mỡ cho công trình xây dựng
Tác hại của mỡ đối với hệ thống thoát nước
Trong các tòa nhà văn phòng, trung tâm thương mại, khách sạn, bệnh viện hay trường học phát sinh một lượng rất lớn chất thải, nước thải từ các khu vệ sinh, nhà bếp,… Do đó các tòa nhà phải đòi hỏi trang bị hệ thống xử lý nước thải hiện đại để đảm bảo không xảy ra hiện tượng tắc nghẽn, bốc mùi hôi thối ảnh hưởng đến hoạt động khác. Một trong những loại chất thải gây tác nghẽn nhiều nhất đó là dầu mỡ phát sinh trong suốt quá trình sơ chế, chế biến, dọn rửa trong nhà bếp. Hiện nay, công nghệ mới nhất về xử lý nước thải trong nhà bếp dựa trên nguyên lý tuyển trọng lực, đó là công nghệ tách mỡ.

Mỡ và các loại dầu có nguồn gốc từ thực vật và động vật chứa trong nước thải dễ dàng bám dính trên thành của đường ống, trạm bơm.... Khi mỡ kết dính, nó làm giảm tiết diện của đường ống, cuối cùng dẫn đến tắc nghẽn hoặc nguy hại hơn là dẫn đến phá hủy đường ống.
Lâu ngày mỡ và các loại dầu bám dính càng nhiều trên các thiết bị trong các hệ thống thoát nước, lượng mỡ lớn hơn khả năng của phản ứng oxi hóa cũng như quá trình sinh hóa phân hủy axit béo. Điều này sẽ hình thành mùi hôi thối rất khó chịu, trong khi đó, vật liệu được sử dụng trong các trang thiết bị của hệ thống thoát nước hoàn toàn không có khả năng chống axit béo, và chúng sẽ bị ăn mòn bởi các chất này dẫn đến giảm tuổi thọ của hệ thống, trang thiết bị.
Mỡ và dầu thực động vật bám dính trong trạm bơm làm giảm hiệu quả của các nhà máy xử lý nước thải. Nhiều nhà máy xử lý nước thải đang ngày càng bị giảm hiệu quả xử lý bởi sự hình thành của chất xơ, rác hay bọt.... Nó được hình thành trực tiếp hoặc gián tiếp bởi các chất tan trong mỡ như được chuyển đổi thành các acid béo. Thêm vào đó, mỡ và dầu hữu cơ tồn tại trong kết quả xử lý nước thải làm tăng độ ẩm, nhầy của bùn hoạt tính, đó sẽ là một rào cản đối với tự do trao đổi oxy trong những vi khuẩn.
Trong các nhà máy xử lý nước thải hữu cơ, phải mất một thời gian tương đối dài cho các chất tan trong mỡ được lắng xuống và phân hủy. Nồng độ chất béo quá cao trong đường ống, bể xử lý nó sẽ hình thành bọt xốp. Bọt, vật cứng, không xử lý tốt, điều này làm hạn chế khả năng thanh lọc của các nhà máy xử lý nước thải.
Các phương pháp tách, quản lý mỡ (Nội dung chuyên sâu)
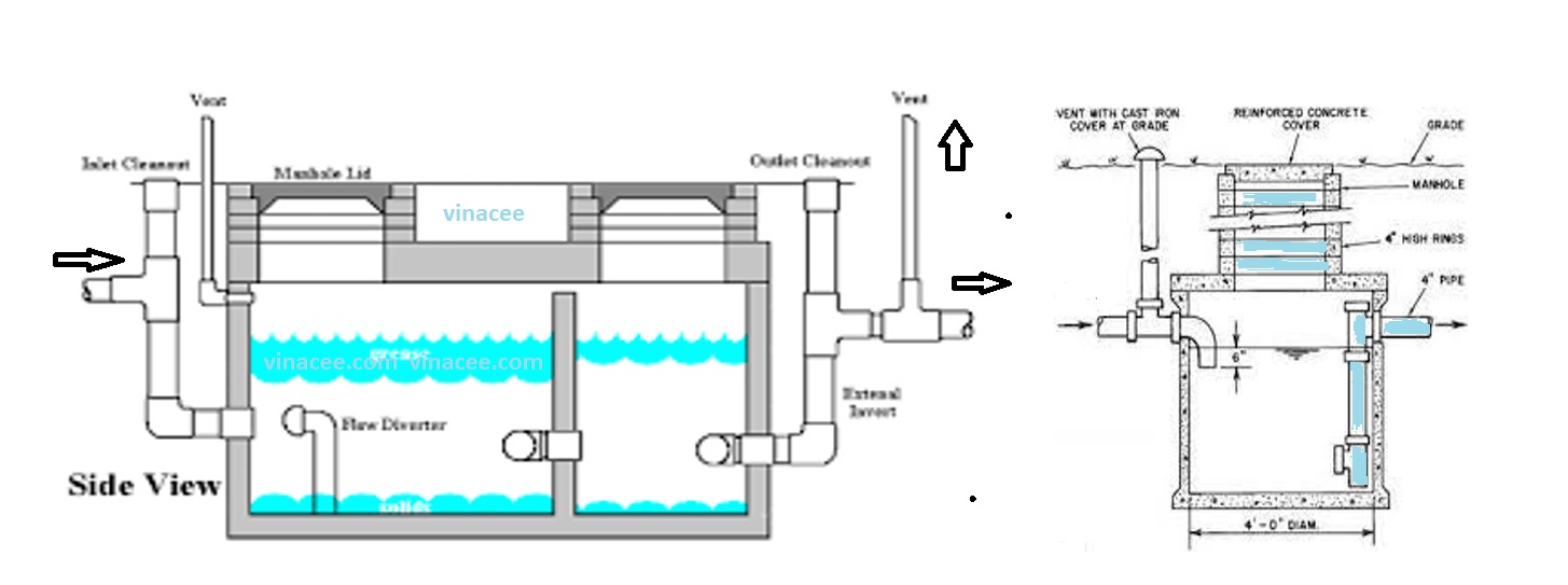
Phương pháp sử dụng bể tách mỡ dạng thủ công (XEM MẪU)
Đây là phương pháp lâu đời và truyền thống nhất để loại bỏ mỡ ra khỏi hệ thống. Phương pháp này dựa trên nguyên lý tuyển nổi. Mỡ nhẹ hơn nước nổi lên trên cặn nặng hơn chìm xuống dưới.

Phương pháp tách mỡ, quản lý mỡ theo công nghệ tự động
Nguyên lý công nghệ dựa trên nguyên lý dòng hướng dòng kết hợp gia nhiệt. Nước và mỡ sau khi đi vào hệ thông sẽ được thiết kế cải tiến hướng lên, mỡ được di chuyển theo dòng chảy thay đổi tốc độ làm phân tử mỡ tách dần khỏi phân tử nước sau đó nổi lên phía trên. Tại hệ thống được bổ sung các thiết bị gia nhiệt, tại đây mỡ được gia nhiệt chống đông cứng bảo đảm luôn ở trạng thái lỏng và dễ dàng thu giữ bằng cơ chế tự động. Trên thân máy có hệ thống kiểm soát mực mỡ sẽ tự động xả khi đầy. Chu trình vận hành của máy hoàn toàn tự động nhờ vào hệ thống tủ điều khiển được cài đặt phù hợp với mỗi công suất, dự án.
Nguyên lý chính của phương pháp tách mỡ
Tách dầu mỡ dựa trên nguyên tắc tuyển trọng lực, dầu mỡ nhẹ hơn nổi lên trên dẫn đến ngăn chứa mỡ, bùn nặng hơn chìm xuống và dẫn đến bẫy bùn.

Tính toán thiết bị tách dầu mỡ
Bể tách mỡ bê tông được tính toán theo Quy chuẩn cấp nước và công trình hoặc tiêu chuẩn thiết kế bể tách mỡ. Tuy nhiên đây là những tài liệu khá cũ, việc tính toán theo số suất ăn giờ cao điểm lớn nhất là rất khó xác định. Vì quá trình mỡ phát sinh ngay từ khi chế biến đến khi rửa đĩa chén mà chúng ta cần xem xét toàn diện. Đặc biệt phương pháp này không đề cập đến chủng loại mỡ, chất tầy rửa, nhiệt độ của mỡ…vì vậy việc tính toán cần được tư vẫn bởi những đơn vị thật sự có kinh nghiệm trong lĩnh vực kỹ thuật này.

Tách dầu mỡ theo công nghệ chuyên sâu tại VINACEE sẽ kiểm soát toàn bộ quá trình tách dầu mỡ, bùn, kiểm soát lượng bùn mỡ tự động, gia nhiệt chống đông, tự động xả mỡ khi đầy ngăn tách. Độ tách sạch mỡ khỏi nước thải đạt 95 - 98%. Nước thải sau khi tách mỡ sẽ được bơm đi tự động vào hệ thống nước thải chung của tòa nhà và đi đến công trình xử lý nước thải (WWT) tiếp theo.

Một số mẫu thiết kế cơ bản cho hệ thống tách dầu, mỡ tự động tại các công trình.
Việc tính toán và thiết kế bể tách mỡ phù hợp với mỗi dự án là vô cùng quan trọng, không những đảm bảo sử dụng hiệu quả công năng thiết bị, hỗ trợ tốt cho quá trình vận hành công trình mà còn mang lại tính thẩm mỹ cao cho hệ thống, sự kết nốt đồng bộ các hạng mục thoát nước.

Thiết kế tốt còn đẩm bảo cho việc duy trình vận hành hiệu quả bền vững cũng như tiết kiệm chi phí (NHẬN HỖ TRỢ TƯ VẪN THIẾT KẾ HỆ THỐNG TÁCH DẦU MỠ) giải cho Tổng thầu EPC, D&B.

Công ty CP Kỹ Thuật Môi Trường và Xây Dựng VINACEE Việt Nam
Địa chỉ: Đội 1 xã Tả Thanh Oai, huyện Thanh Trì, TP Hà Nội
Cơ sở 2: Số 5/2 Ngõ 1295 Đường Giải Phóng, Q Hoàng Mai, Hà Nội
VPGD: Tòa nhà Licogi số 25A, Tân Mai, Hoàng Mai, Hà Nội
Showroom 1: 177, Đại La, Hai Bà Trưng, TP Hà Nội
Showroom 2: TT Thương Mại, Tòa LICOGI19, 25 Tân Mai, HM, TP Hà Nội
Điện thoại: 0243.201.3589
Hotline: Mr Tuyên 0942226986 (zalo), Mr Thanh 0837145888 (zalo)
Website: betachmo.vn/ E-mail: vinaceeco@gmail.com



Viết bình luận