Bể tách dầu mỡ - Cấu tạo và hướng dẫn tính toán, thiết kế (Phần 2)
Bể tách dầu mỡ - Sản phẩm thân thiện với môi trường
Bể tách dầu mỡ, bể tách mỡ, thiết bị lọc mỡ 3 ngắn là thiết bị lọc tách dầu mỡ và nước thải trong hệ thống nước thải tại các quán án, nhà hàng, khách sạn hay khu bếp tại các công ty, xí nghiệp. Nước thải từ các khu bếp, các chậu rửa bát đĩa thường có hàm lượng dầu mỡ động thực vật cao, nước thải cần được tách dầu, mỡ qua bể tách dầu mỡ trước khi dẫn vào hệ thống xử lý nước thải chung. Bể tách dầu mỡ nên đặt ngầm gần khu bếp và nhà ăn để tiết kiệm diện tích. KINH NGHIỆM CHỌN BỂ TÁCH MỠ INOX CAO CẤP

Bể tách mỡ nhập khẩu chất lượng cao cho nhà hàng, khách sạn: Xem tại đây
Cấu tạo bể tách dầu mỡ, thiết bị lọc mỡ (NHẬN TÀI LIỆU CHI TIẾT)
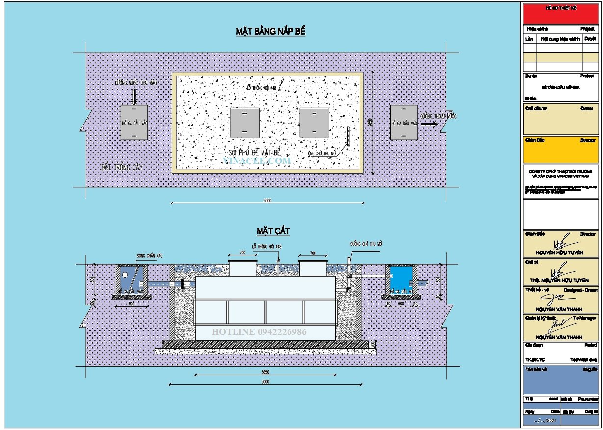
Nhìn chung thì bể tách dầu mỡ hay thiết bị lọc mỡ thường có 3 ngăn: Ngăn chứa rác, ngăn lọc mỡ và ngăn chưa nước sạch. Ngoài ra theo nhu cầu xử dụng của khách hàng mà chúng tôi có thể thêm các giải pháp cấu tạo nhằm đáp ứng được nhu cầu sử dụng của đối tác đối với các dự án có yêu cầu cao hơn (Catalogue sản phẩm dự án)

Nguyên lý hoạt động của bề tách dầu mỡ hiệu quả (NHẬN THIẾT KẾ MIỄN PHÍ)
Nước thải từ căng tin, nhà ăn, bếp nấu của nhà hàng, khách sạn, bếp ăn công ty có chứa một lượng dầu, mỡ tương đối lớn sẽ được đưa vào ngăn chứa thứ nhất thông qua sọt rác được thiết kế bên trong, cho phép giữ lại các chất bẩn như các loại thực phẩm, đồ ăn thừa, xương hay các loại tạp chất khác...có trong nước thải. Chức năng này giúp cho bể tách mỡ làm việc ổn định mà không bị nghẹt rác.

Sau đó nước thải đi sang ngăn thứ hai, ở đây thời gian lưu dài đủ để mỡ, dầu nổi lên mặt nước. Còn phần nước trong sau khi mỡ và dầu đã tách ra lại tiếp tục đi xuống đáy bể và chảy ra ngoài. Lớp dầu mỡ sẽ tích tụ dần dần và tạo lớp váng trên bề mặt nước, định kỳ chúng ta xả van để loại bỏ lớp dầu mỡ. Nước thải sau bể tách dầu mỡ sẽ được đưa về khu xử lý nước thải sinh hoạt của nhà hàng hay khách sạn đấy.
Địa chỉ mua bể tách dầu mỡ uy tín, chất lượng tại Hà Nội và TPHCM, Hải Phòng, Đà Nẵng.
Để lựa chọn và quyết định mua một sản phẩm bể tách mỡ Inox chất lượng tốt cho gia đình hay công trình, dự án, đảm bảo mục đích công năng sử dụng, giá trị bền vững, khách hàng nên căn cứ và một số đặc điểm của sản phẩm (Mẫu mã, thiết kế, cấu tạo, vật liệu cũng như những thông tin của nhà cung cấp để lựa chọn được sản phẩm phù hợp, đáp ứng đúng nhu cầu. (THAM KHẢO TÍNH TOÁN DUNG TÍCH BỂ THEO TCVN)

Tại Việt Nam - VINACEE luôn tự hào là đơn vị số một về thiết kế, chế tạo, sản xuất cung cấp các thiết bị tách dầu mỡ bao gồm cả bể tách mỡ cho các căn hộ chung cư tại Việt Nam.

Sản phẩm của VINACEE là kết quả của nghiên cứu và cải tiến sản phẩm của đội ngũ Tiến sỹ, kỹ sư nhiều năm kinh nghiệm trong lĩnh vực Công nghệ môi trường, kỹ thuật môi trường và thoát nước.

Bên cạnh đó, thiết bị của VINACEE được sản xuất trên các thiết bị máy công nghiệp, mang đến sản phẩm có mẫu mã, chất lượng được kiểm tra đánh giá quy trình quản lý chứng nhận theo tiêu chuẩn ISO 9001. 2015 cùng với đó là chính sách hậu mãi lâu dài với chế độ bảo hành từ 2 năm (đối với bể tách mỡ gia đình) đến 5 năm (đối với thiết bị tách mỡ công nghiệp).

Liên hệ nhận tư vấn MIỄN PHÍ (Xem thêm hồ sơ Công ty)
====================================================
Chủ biên: ThS. NGUYỄN HỮU TUYÊN - GĐ DỰ ÁN (Liên hệ tư vấn 094.222.6986)
Công ty CP Kỹ thuật Môi trường và Xây dựng VINACEE Việt Nam
Địa chỉ: Đội 1 xã Tả Thanh Oai, huyện Thanh Trì, TP Hà Nội
Cơ sở 2: Số 5/2 Ngõ 1295 Đường Giải Phóng, Q Hoàng Mai, Hà Nội
VPGD: Tòa nhà Licogi số 25A, Tân Mai, Hoàng Mai, Hà Nội
Showroom 1: 177, Đại La, Hai Bà Trưng, TP Hà Nội
Showroom 2: TT Thương Mại, Tòa LICOGI19, 25 Tân Mai, HM, TP Hà Nội
Điện thoại: 0243.201.3589
Hotline: Mr Tuyên 0942226986 (zalo), Mr Thanh 0837145888 (zalo)
Website: betachmo.vn/ E-mail: vinaceeco@gmail.com

Viết bình luận