Rộn ràng công tác lắp bể tách mỡ cho Căng tin trường học, bệnh viện nhằm bảo vệ môi trường
Dầu mỡ dính bám có tác hại như thế nào? Chúng ta đề biết dầu mỡ là chất không hòa tan trong nước và rất khó phân hủy trong tự nhiên; Nên khi chúng đi vào trong hệ thống thoát nước của tòa nhà hay bếp nhà hàng sẽ làm tắc hệ thống đường ống thoát nước của các căn hộ, hơn thế còn làm giảm hiệu quả xử lý thải của các công trình xử lý nước thải cho tòa nhà, công trình. Với các căng tin, nhà ăn tại trường học, bệnh viện, việc sử dụng nhiều dầu mỡ cũng mang đến một hệ quả tương tự.

Vậy, hãy cùng Thạc sĩ Nguyễn Hữu Tuyên tìm hiểu một số nội dung bao hàm trong hoạt động lắp đặt bể tách mỡ cho Trường học, Bệnh viện ngày nay nhé.
Tách dầu mỡ cho căng tin, nhà ăn tập thể? Vì sao và ý nghĩa thiết thực.
Vì sao phải tách dầu mỡ trước khi thải ra môi trường? đó là câu hỏi được rất nhiều người quan tâm hiện nay. Với sự thay đổi lớn về nhận thức, công tác quản lý cũng như các hoạt động bảo vệ môi trường đang được thực hiện đầy đủ hơn, tách dầu mỡ cho các nhà ăn tập thể, căn tin trường học, bệnh viện đang là một trong những yêu cầu cấp thiết, bắt buộc.

Những lý do cần thiết khi lắp đặt bể tách mỡ?
- Lý do đầu tiên hiển nhiên phải kể đến đó là lợi ích của việc lắp bể tách mỡ: Với việc loại bỏ hơn 90% dầu mỡ trong nước thải, tách và giữ lại ngay tại bể, bể tách mỡ giúp cho việc ngăn ngữa mỡ bám, các chất cặn bẩn gây tắc đường ống dẫn đến phải thống tắc, đục phá nền nhà vừa tốn kém lại xử lý không triệt để.

- Việc tách mỡ thải và chất bất góp phần bảo vệ hệ thống công trình, đường ống thoát nước công cộng, bảo vệ các công trình thu gom và xử lý nước thải phía sau
- Dầu mỡ được tách ra khỏi nước thải góp phần bảo vệ môi trường, bảo vệ hệ sinh thái cảnh quan.

Hiện nay tại nhiều thành phố, nhiều khu đô thị hay tại ban quản lý các khu công nghiệp đã đắc biệt trú trọng và đưa ra các biện pháp quản lý nước thải có chứa dầu mỡ như việc yêu cầu phải lắp đặt các thiết bị tách dầu mỡ, hộp bẩy mỡ để giảm thiểu tác động của dầu mỡ đối với môi trường và hệ thống hạ tầng. Đặc biệt với chủ trương không quản lý được thì phạt bằng tiền. Ban quản lý các khu xử lý cũng rất mạnh tay với việc liên tục tăng mức phạt lên 10-15 triệu khi các đơn vị bị phát hiện để nước thải chứa dầu mỡ vào khu xử lý chung.

Bể tách mỡ thông minh, tách bỏ 95% dầu mỡ, nguyên lý và cách lắp đặt (XEM THÊM NGHIÊN CỨU THỰC NGHIỆM)
Nước thải phát sinh từ nhà bếp của nhà hàng được thu gom theo tuyến ống thu gom nước thải đưa về module tách mỡ. Đầu tiên nước thải chảy đến giỏ thu rác, rác có kích thước nhỏ được loại bỏ để giãm thiểu khả năng tắc nghẽn bên trong hệ thống.
Tại vách hướng dòng, các hạt dầu li ti liên kết lại thành hạt dầu có đường kính lớn hơn và nổi lên trên. Dầu được loại bỏ bằng máy vớt dầu tự động.

Nước trong bể được duy trì nhiệt độ từ 35-400C làm cho dầu mỡ không bị vón cục, làm giãm khả năng tắc nghẽn cục bộ trong hệ thống (ĐỐI VỚI CÁC THIẾT BỊ TÁCH MỠ TỰ ĐỘNG)
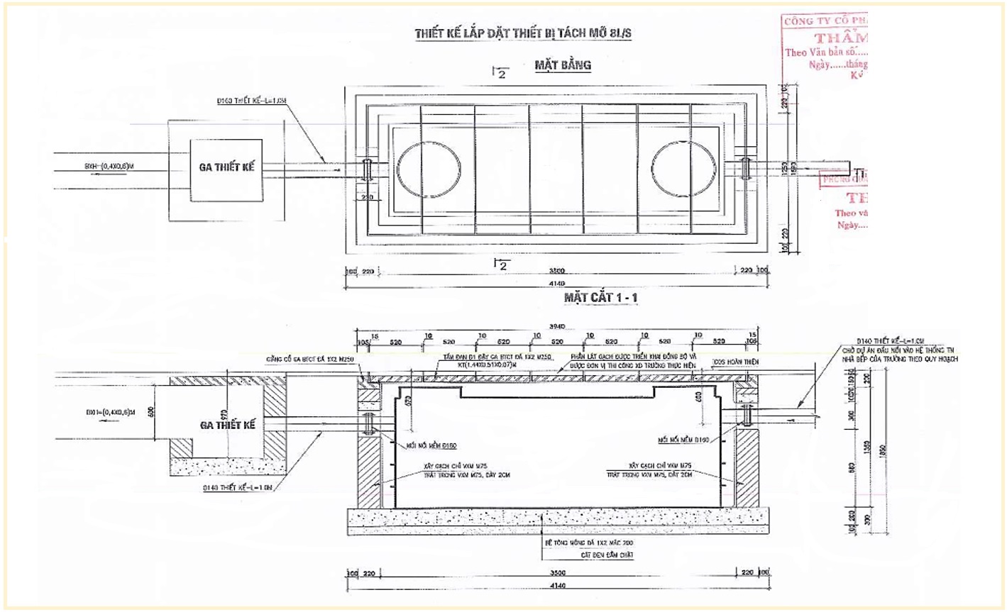
Tham khảo bản vẽ thiết kế và một số công trình thực tế do VINACEE thực hiện



Công ty CP Kỹ Thuật Môi Trường và Xây Dựng VINACEE Việt Nam
Địa chỉ: Đội 1 Tả Thanh Oai, Thanh Trì, Hà Nội
Cơ sở 2: Số 5/2 Ngõ 1295 Đường Giải Phóng, Q Hoàng Mai, Hà Nội
VPGD: Tòa nhà LICOGI số 25A, Tân Mai, Hoàng Mai, Hà Nội.
Showroom: Số 177 Phố Đại La, p Đồng Tâm, Hai Bà Trưng, Hà Nội
ĐT: 0837145888, hotline: 0942226986
Tạp chí môi trường viết về Bể tách mỡ VINACEE Xem thêm TẠI ĐÂY
Tạp chí Xây dựng về bể tách mỡ VINACEE: Xem thêm TẠI ĐÂY
Email: Vinaceeco@gmail.com

		
Viết bình luận