Khi nào thì dùng bể tách mỡ tự động cho các nhà hàng, bếp ăn công nghiệp
Bể tách mỡ là gì? Là thiết bị dùng để tách dầu mỡ thừa sau quá trình sơ chế, nấu ăn và vệ sinh nhà bếp, nhà xưởng ra khỏi nước thải. Được bố trí dưới chậu rửa trong bếp ăn của gia đình, quán ăn, căn tin, nhà hàng, khách sạn hoặc sẽ được đặt chìm dưới lòng đất. Nhằm ngăn chặn dầu mỡ thừa dính bám gây tắc đường ống, hơn thế còn làm giảm hiệu quả xử lý thải của các công trình xử lý nước thải cho tòa nhà.

Nguyên lý tách dầu mỡ của bể tách mỡ hiệu quả nhất:
Nước thải từ căn tin, nhà ăn, bếp nấu của nhà hàng, khách sạn, bếp ăn công ty có chứa một lượng dầu, mỡ tương đối lớn sẽ được đưa vào ngăn chứa thứ nhất thông qua sọt rác được thiết kế bên trong, cho phép giữ lại các chất bẩn như các loại thực phẩm, đồ ăn thừa, xương hay các loại tạp chất khác...có trong nước thải. Chức năng này giúp cho bể tách mỡ làm việc ổn định mà không bị nghẹt rác.
Sau đó nước thải đi sang ngăn thứ hai, ở đây thời gian lưu dài đủ để mỡ, dầu nổi lên mặt nước. Còn phần nước trong sau khi mỡ và dầu đã tách ra lại tiếp tục đi xuống đáy bể và chảy ra ngoài. Lớp dầu mỡ sẽ tích tụ dần dần và tạo lớp váng trên bề mặt nước, định kỳ chúng ta xả van để loại bỏ lớp dầu mỡ. Nước thải sau bể tách dầu mỡ sẽ được đưa về khu xử lý nước thải sinh hoạt của nhà hàng hay khách sạn đấy.
Bể tách mỡ thủ công: Ưu và nhước điểm
Bể tách mỡ thủ công là thiết bị tách dầu mỡ thông minh không dùng điện năng, hóa chất (Bể thường có cấu tạo 3 - 4 ngăn) hoạt động hiệu quả
Ưu điểm của bể bể: Chi phí lăp đặt thấp, không dùng điện năng, ít tốt kém khi vận hành, kiểm soát sự cố dễ dàng

Nhước điểm: Với các bếp ăn công nghiệp, nhà hàng lớn lượng dầu mỡ thải kết hợp cùng chất bẩn nhiều, việc tách, thu gom và vớt mỡ thủ công khá bất tiện, không phù hợp, cần phải mở nắp bể thường xuyên, gây bất lợi trong quá trình hoạt động sản xuất kinh doanh
CÁC CHUYÊN GIA KHUYẾN CÁO: Với các cơ sở có công suất ăn phục vụ > 2000 suất ăn/ngày thì nên xem xét việc lắp đặt các thiết bị tách dầu mỡ tự động.
Bể tách mỡ tự động hoạt động như thế nào? Vì sao nên lắp bể tách mỡ tự động (XEM SẢN PHẨM TỰ ĐỘNG)
Với hầu hết các cơ sở (Nhà hàng, khách sạn, bếp ăn công nghiệp, trường học, bênh viện) có công suất phục vụ > 1000 suất ăn, lượng dầu mỡ thải phát sinh mỗi ngày, mỗi ca là vô cũng nhiều; Việc thu vớt mỡ hoặc xả mỡ bằng phương pháp thủ công không còn phù hợp, không thuận tiện hoặc đòi hỏi có người chuyên trách. Khi đó sản phẩm bể tách dầu mỡ tự động sẽ giải quyết được hầu hết các vấn đề bất tiện như trên.

- Tự động tách mỡ + thu mỡ bằng phương pháp tuyển nổi, tay gạt, thiết bị thu bể mặt
- Có thiết bị gia nhiệt giảm thiểu mỡ đông cứng
- Có zơ le bảo vệ điện và bảo vệ thiết bị
- Có bộ phận hỗ trợ vệ sinh định kỳ thiết bị
- Tự động bơm, thu mỡ ra thùng chứa định kỳ theo timer hoặc theo báo mức mỡ
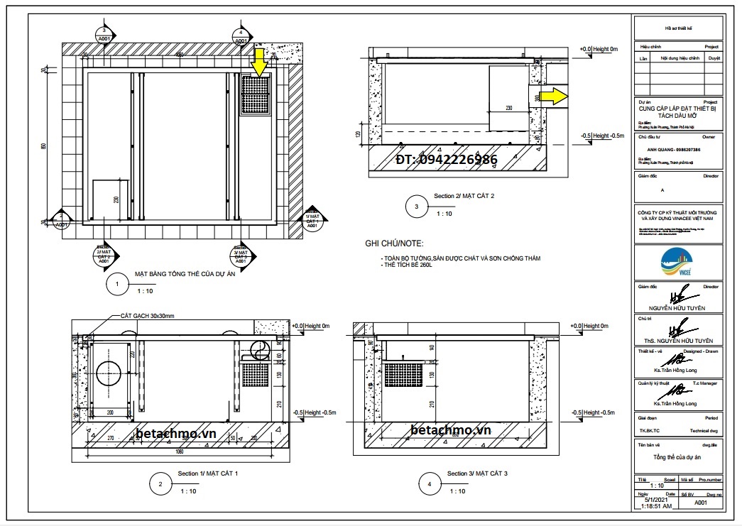
Mẫu tính toán thiết kế hệ thống tách dầu mỡ công nghiệp ? 2000 suất ăn

Đơn vị cung cấp bể tách dầu mỡ tự động uy tín? (Xem thêm Catalogue).
Tại Việt Nam, VINACEE là đơn vị hàng đầu trong lĩnh vực chế tạo, nhập khẩu cung cấp lắp đặt thiết bị tách dầu mỡ nói chung và các thiết bị tách dầu mỡ tự động nói riêng. Sản phẩm của VINACEE cung cấp cho hơn 2000 (hai ngàn) khách hàng và đối tác trong và ngoài nước được cấp Chứng nhận Quy trình quản lý chất lượng ISO 9001:2015 và được tặng kỷ niệm chương vì sự nghiệp kỹ thuật môi trường.
Sản phẩm của VINACEE là sự kết hợp sáng tạo, cải tiến thiết bị của đội ngũ kỹ thuật, kỹ sư, tiến sĩ công nghệ có nhiều năm kinh nghiệm trong xử lý nước thải, xử lý dầu mỡ
Thông tin liên hệ: XEM HỒ SƠ NĂNG LỰC CÔNG TY (TẠI ĐÂY)
==================================================
Công ty CP Kỹ Thuật Môi Trường và Xây Dựng Vinacee Việt Nam
Địa chỉ: Đội 1 Tả Thanh Oai, Thanh Trì, Hà Nội
Cơ sở 2: Số 5/2 Ngõ 1295 Đường Giải Phóng, Q Hoàng Mai, Hà Nội
Showroom 1: 41 Trường Chinh, Thanh Xuân, Hà Nội
ĐT: 0837145888, hotline: 0942226986
Tạp chí môi trường viết về Bể tách mỡ VINACEE Xem thêm TẠI ĐÂY
Tạp chí Xây dựng về bể tách mỡ VINACEE: Xem thêm TẠI ĐÂY






Viết bình luận