Cách lắp đặt bể tách mỡ cho nhà hàng và bếp ăn công nghiệp hiệu quả, tiện lợi
Tác hại của dầu mỡ và hiệu quả tuyệt vời khi lắp đặt bể tách mỡ thông minh
Chúng ta đều biết, dầu mỡ là chất không hòa tan trong nước và rất khó phân hủy trong tự nhiên. Nên khi chúng đi vào trong hệ thống thoát nước của tòa nhà hay bếp nhà hàng sẽ làm tắc hệ thống đường ống thoát nước của các căn hộ, công trình (ĐĂNG KÝ NHẬN TƯ VẤN THIẾT KẾ MIỄN PHÍ)

Đặc biệt hơn thế còn làm giảm hiệu quả xử lý thải của các công trình xử lý nước thải cho tòa nhà, cơ sở. Ngoài ra, có nhiều trường hợp các khu bếp ăn xí nghiệp, bếp nhà hàng xem nhẹ việc xử lý dầu mỡ nên đổ trực tiếp ra môi trường mà không qua thu gom xử lý; Dẫn đến tình trạng tắc nghẽn đường ống dẫn, hệ thống thoát nước đô thị và ô nhiễm môi trường trầm trọng.
Vì sao phải lắp đặt bể tách mỡ là điều cần thiết
Tại các hộ gia đình ở chung cư thì việc lắp đặt bể tách mỡ là điều khuyến khích cần thực hiện, bởi chúng ta thường thấy hiện tượng tắc nghẽn đường ống sau 2 đến 3 năm khi căn hộ đi vào sử dụng đặc biệt với các căn hộ chung cư, trong khi đó việc thuê dịch vụ thông hút vừa gặp nhiều phiền toái lại không xử lý triệt để được vấn đề tắc nghẽn hệ thống đường ống thoát nước do mỡ và các cáu cặn không tan.
Tại các cơ sở sản xuất kinh doanh dịch vụ ăn uống, nhà máy, xí nghiệp, việc sử dụng các thiết bị tách dầu mỡ được xem là bắt buộc theo Quy định của UBND các tỉnh và thành phố, thậm chí là bị phạt nếu không thực hiện.

Việc lắp đặt bể tách mỡ không những mang lại nhiều lợi ích kinh tế trong quá trình hoạt động sản xuất kinh doanh mà còn đóng góp vai trò xã hội rất lớn của các cá nhân, cơ sở sản xuất kinh doanh trong việc bảo vệ hệ thống kỹ thuật hạ tầng công trình cũng như bảo vệ môi trường
Chi tiết hướng dẫn sử dụng BỂ TÁCH DẦU MỠ, THÙNG LỌC MỠ (Hướng dẫn lựa chọn Bể tách mỡ) giúp cho hệ thống xử lý nước thải tại các tòa nhà không bị quá tải, giảm bớt gánh nặng chi phí sửa chữa và vận hành.
Các lắp đặt bể tách mỡ hiệu quả, phù hợp với thực tế hơn 2000 cơ sở nhà hàng, bếp công nghiệp trên toàn quốc.

Chúng ta đều biết, để bể tách mở sử dụng hiệu quả, ngoài sản phẩm có thiết kế tốt thì tiệc lắp đặt thiết bị tách dầu mỡ, thiết bị bẫy mỡ cần tham khảo các tài liệu, chỉ dẫn kỹ thuật, tiêu chuẩn cấp thoát nước thông qua các chuyên gia, kỹ sư môi trường có kinh nghiệm tại các đơn vị chuyên môn.
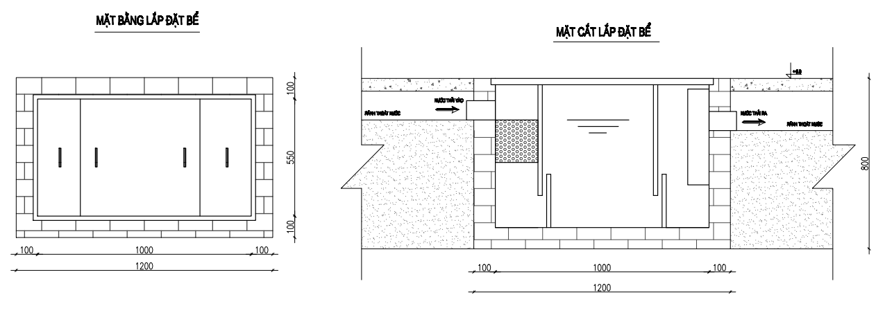
Dưới đây là sơ đồ lắp đặt thiết bị tách dầu mỡ đã được các chuyên gia tính toán tư vấn và phác họa.
Sơ đồ lắp đặt bể tách mỡ kiểu đặt chìm (các bể có dung tích 200 lít đến 4500 lít)


Hỗ trợ tư vấn môi trường, xử lý nước thải và xử lý dầu mỡ XEM NGAY
(Sơ đồ lắp đặt bể nổi: Bể có dung tích từ 40 đến 2000 lít)


Công ty CP Kỹ Thuật Môi Trường và Xây Dựng VINACEE Việt Nam
Địa chỉ: Đội 1 Tả Thanh Oai, Thanh Trì, Hà Nội
Cơ sở 2: Số 5/2 Ngõ 1295 Đường Giải Phóng, Q Hoàng Mai, Hà Nội
VPGD: Tòa nhà LICOGI số 25A, Tân Mai, Hoàng Mai, Hà Nội.
Showroom 1: 41 Trường Chinh, Thanh Xuân, Hà Nội
ĐT: 0837145888, hotline: 0942226986
Tạp chí môi trường viết về Bể tách mỡ VINACEE Xem thêm TẠI ĐÂY
Tạp chí Xây dựng về bể tách mỡ VINACEE: Xem thêm TẠI ĐÂY
Email: Vinaceeco@gmail.com

 
					 
					 
					 
					 
					 
					 
					 
					 
					 
					 
					 
					 
					 
					 
					 
					 
					 
					 
					 
					 
					 
					 
					 
					 
					 
					 
					 
					 
					 
					 
					 
					 
					 
					 
					 
					 
					 
					 
					 
					 
					 
					 
					 
					 
					 
					 
					 
					 
					 
					 
		
Viết bình luận