Bí mật và bật mí về cấu tạo và nguyên lý làm việc của bể tách mỡ thông minh VINACEE
Bể tách dầu mỡ, bể tách mỡ, thiết bị bẫy mỡ, thiết bị lọc mỡ 3 ngăn là thiết bị lọc tách dầu mỡ và nước thải trong hệ thống nước thải tại các quán án, nhà hàng, khách sạn hay khu bếp tại các công ty, xí nghiệp - bể tách dầu cho Gara.

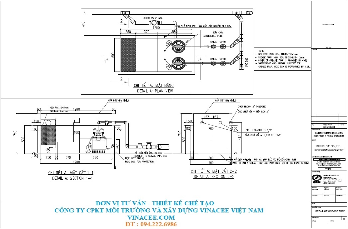
Nước thải từ các khu bếp, các chậu rửa bát đĩa, khu sơ chế, chế biến thực phẩm thường có hàm lượng dầu mỡ động thực vật cao, nước thải cần được tách dầu, mỡ qua bể tách dầu mỡ trước khi dẫn vào hệ thống xử lý nước thải chung. Bể tách dầu mỡ có thể đặt dưới chậu rửa (bẫy mỡ/hộp tách mỡ) hoặc đặt ngầm dưới nền đất gần khu bếp và nhà ăn để tiết kiệm diện tích. (Mẫu bể tách mỡ đặt âm sàn chi tiết bên dưới)

Bài viết này tác giải xin được bật mí thêm về cấu tạo và nguyên lý làm việc của bể tách mỡ thông minh.
Cấu tạo bể tách dầu mỡ thông minh tiêu chuẩn (NHẬN TÀI LIỆU CHI TIẾT)
Nhìn chung thì bể tách dầu mỡ hay thiết bị lọc mỡ thường có 3 ngăn: Ngăn chứa rác, ngăn lọc mỡ và ngăn chứa nước sạch (có thể thiết kế tốt thành ngăn lọc mỡ thứ cấp và hộp định hướng dòng nước sạch).

Ngoài ra theo nhu cầu xử dụng của khách hàng mà chúng tôi có thể thêm các giải pháp cấu tạo nhằm đáp ứng được nhu cầu sử dụng của đối tác với các sản phẩm cao cấp hơn như máy tách mỡ tự động, bể tách mỡ bán tự động.
Nguyên lý hoạt động của bề tách dầu mỡ ba ngăn tiêu chuẩn - hiệu quả XEM THÊM
Nước thải có chứa một lượng dầu, mỡ tương đối lớn sẽ được đưa vào ngăn chứa thứ nhất thông qua sọt rác được thiết kế bên trong, cho phép giữ lại các chất bẩn như các loại thực phẩm, đồ ăn thừa, xương hay các loại tạp chất khác...có trong nước thải. Chức năng này giúp cho bể tách mỡ làm việc ổn định mà không bị nghẹt rác.
Sau đó nước thải đi sang ngăn thứ hai, ở đây thời gian lưu dài đủ để mỡ, dầu nổi lên mặt nước. Còn phần nước trong sau khi mỡ và dầu đã tách ra lại tiếp tục đi xuống đáy bể và chảy ra ngoài.
Lớp dầu mỡ sẽ tích tụ dần dần và tạo lớp váng trên bề mặt nước, định kỳ chúng ta xả van để loại bỏ lớp dầu mỡ. Nước thải sau bể tách dầu mỡ sẽ được đưa về khu xử lý nước thải sinh hoạt của nhà hàng hay khách sạn đấy.
Một số mẫu thiết kế cơ bản cho bể tách mỡ ba ngăn tiêu chuẩn ISO
Để có một sản phẩm bể tách mỡ, thiết bị lọc mỡ tốt, hiệu quả, thẩm mỹ nhất là lại phù hợp với điều kiện thi công lắp đặt, việc tính toán thiết kế bể tách mỡ là rất quan trọng và cần thiết - VINACEE luôn hỗ trợ bạn miễn phí điều này..




VINACEE - Đơn vị hàng đầu Việt Nam chuyên cung cấp các thiết bị xử lý nước thải như bể tách dầu mỡ, thiết bị lọc mỡ, bồn bể lọc dầu mỡ phục vụ cho các nhà hàng, khách sạn, hay các bếp ăn có công suất lớn tại khu xí nghiệp, các trạm xăng, kho chứa xăng dầu, gara ô tô ....Với thương hiệu uy tín chất lượng tại Hà Nội và thành phố Hồ Chí Minh cùng mức giá phù hợp nhất trên thị trường, chúng tôi tin rằng công ty sẽ đáp ứng yêu cầu khách tất cả khách hàng.

Nếu có ai đó nói rằng vấn đề của bạn là khó........... Hãy gọi cho chúng tôi 0942226986 Tư vấn môi trường, giấy phép môi trường, xlmt... chương trình quản lý môi trường tại cơ sở. HÃY LIÊN HỆ NGAY ThS Nguyễn Hữu Tuyên
=======================================================================
Công ty CP Kỹ Thuật Môi Trường và Xây Dựng VINACEE Việt Nam
Địa chỉ: Đội 1 xã Tả Thanh Oai, huyện Thanh Trì, TP Hà Nội
VPGD: Tòa nhà Licogi số 25A, Tân Mai, Hoàng Mai, Hà Nội
Showroom 1: 177, Đại La, Hai Bà Trưng, TP Hà Nội
Showroom 2: TT Thương Mại, Tòa LICOGI19, 25 Tân Mai, HM, TP Hà Nội
NPP - Quốc Chính Số 36, Ngõ 264 Phố Định Công Hạ, P Định Công, Q Hoàng Mai, TP HN (0984849454)
Hotline: Mr Tuyên 0942226986 (zalo), Mr Thanh 0837145888 (zalo)
Website: betachmo.vn/ E-mail: vinaceeco@gmail.com

bao bao