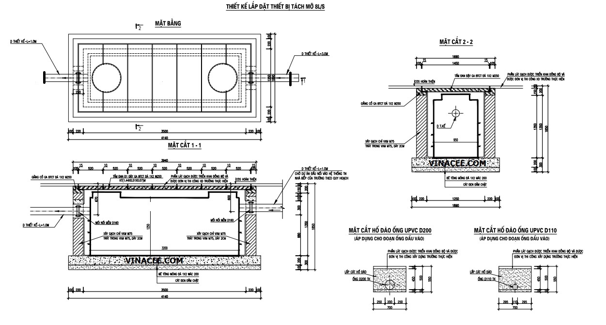
Thiết kế lắp đặt bể tách mỡ cho các nhà ăn Bệnh viện, trường học và bếp ăn công nghiệp
Dầu mỡ dính bám có tác hại như thế nào? Chúng ta đề biết dầu mỡ là chất không hòa tan trong nước và rất khó phân hủy trong tự nhiên. Nên khi chúng đi vào trong hệ thống thoát nước của tòa nhà hay bếp nhà hàng sẽ làm tắc hệ thống đường ống thoát nước của các căn hộ, hơn thế còn làm giảm hiệu quả xử lý thải của các công trình xử lý nước thải cho tòa nhà. (XEM THÊM CATALOG SẢN PHẨM VÀ TÀI LIỆU LẮP ĐẶT)
1. Những lý do cần thiết khi lắp đặt bể tách mỡ?
+ Lý do đầu tiên hiển nhiên phải kể đến đó là lợi ích của việc lắp bể tách mỡ: Với việc loại bỏ hơn 90% dầu mỡ trong nước thải, tách và giữ lại ngay tại bể, bể tách mỡ giúp cho việc ngăn ngữa mỡ bám, các chất cặn bẩn gây tắc đường ống dẫn đến phải thống tắc, đục phá nền nhà vừa tốn kém lại xử lý không triệt để

+ Việc tách mỡ thải và chất bất góp phần bảo vệ hệ thống công trình, đường ống thoát nước công cộng, bảo vệ các công trình thu gom và xử lý nước thải phía sau
+ Dầu mỡ được tách ra khỏi nước thải góp phần bảo vệ môi trường, bảo vệ hệ sinh thái cảnh quan.
+ Hiện nay tại nhiều thành phố, nhiều khu đô thị hay tại ban quản lý các khu công nghiệp đã đắc biệt trú trọng và đưa ra các biện pháp quản lý nước thải có chứa dầu mỡ như việc yêu cầu phải lắp đặt các thiết bị tách dầu mỡ, hộp bẩy mỡ để giảm thiểu tác động của dầu mỡ đối với môi trường và hệ thống hạ tầng.

+ Đặc biệt với chủ trương không quản lý được thì phạt bằng tiền. Ban quản lý các khu xử lý cũng rất mạnh tay với việc liên tục tăng mức phạt lên 10-15 triệu khi các đơn vị bị phát hiện để nước thải chứa dầu mỡ vào khu xử lý chung.
2. Sử dụng bể tách mỡ như thế nào hiệu quả? Xem hướng dẫn sử dụng như thế nào? (Xem tại đây)

3. Kinh nghiệm lựa chọn bể tách mỡ hiệu quả như thế nào?
Để lựa chọn được sản phẩm bể tách mỡ tốt, phù hợp, bạn cần tham khảo sự tư vấn của các đơn vị có chuyên môn và có kinh nghiệm (Bạn có thể liên hệ KS Trần Hồng Gấm: SĐT 0982309689 - Tư vấn hoàn toàn miễn phí), để được tư vấn sản phẩm phù hợp, lựa chọn thiết kế hiệu quả. Điều đặc biệt khách hàng cần có một thiết kế thật đủ tốt, một cơ sở sản xuất thật đủ uy tín để tìm kiếm một giải pháp giá trị.

Bên cạnh đó Khách hàng cần thật sự chút ý đến các đơn vị cung cấp, nhà cung cấp uy tín để đảm bảo quyền lợi sử dụng và các lợi ích lâu dài như: Bảo hành, đổi trả hàng hóa, bảo dưỡng, bảo trì...và các dịch vụ hỗ trợ khác.

Trên đây là những chia sẽ từ kinh nghiệm cũng như tâm huyết trong lĩnh vực tư vấn môi trường, thoát nước và xử lý nước thải mà đội ngũ VINACEE Việt Nam mong muốn bạn luôn có những sự lựa chọn tốt nhất, phù hợp nhất cho cơ sở của mình.

(XEM THÊM CÁC DỰ ÁN TÁCH MỠ VÀ XỬ LÝ NƯỚC THẢI NHIỄM DẦU MỠ DO VINACEE THỰC HIỆN).





 
					 
					 
					 
					 
					 
					 
					 
					 
					 
					 
					 
					 
					 
					 
					 
					 
					 
					 
					 
					 
					 
					 
					 
					 
					 
					 
					 
					 
					 
					 
					 
					 
					 
					 
					 
					 
					 
					 
					 
					 
					 
					 
					 
					 
					 
					 
					 
					 
					 
					 
		
Viết bình luận