Một số chú ý đối với tư vấn, lựa chọn cung cấp bể tách mỡ công nghiệp cho các dự án
Để phục vụ, hỗ trợ tốt cho việc mua sắm, lựa chọn sản phẩm thiết bị bể tác mỡ dự án, chúng ta cần chú ý những điều gì? Hãy cùng tham khảo thêm bài viết để có được giải pháp tốt cho dự án, công trình của bạn nhé. Phần bản vẽ xin nhận tại cuối bài viết này.
Bể tách mỡ là gì? Ý nghĩa lắp đặt bể tách mỡ
Bể tách mỡ là thiết bị dùng để tách dầu mỡ thừa sau quá trình sơ chế, nấu ăn và vệ sinh nhà bếp, nhà xưởng ra khỏi nước thải. Được bố trí dưới chậu rửa trong bếp ăn của gia đình, quán ăn, căn tin, nhà hàng, khách sạn hoặc sẽ được đặt chìm dưới lòng đất nhằm ngăn chặn dầu mỡ thừa dính bám gây tắc đường ống.

Bể tách mỡ được Quy định lắp đặt tại nhiều địa phương, thành phố lớn để đảm bảo hệ thống thoát nước đô thị được an toàn.

Vì sao nên chú ý khi mua sắm, lựa chọn bẻ tách mỡ.
Đối với các bể tách mỡ công nghiệp có Công suất lớn thường từ > 5m3/h (lưu lượng nước thải vào bể) hoặc > 1000 suất ăn/ ngày đòi hỏi bể có kích thước tương đối lớn. Vì vậy việc lắp đặt thiết bị đòi hỏi sự kết hợp các yêu tố kỹ thuật, công nghệ, cơ điện, cơ giới.

Vì vậy, để sử dụng hiệu quả thiết bị, lắp đặt phù hợp và tối ưu vận hành, chúng ta cần chú ý một số thông tin cơ bản như:
Các chú ý về thông tin dự án và chủ đầu tư
Việc trao đổi thông tin, năng lực, chức năng của Bên bán và Bên mua giúp hai bên hiểu rõ vài trò, năng lực và vị thế trong chuỗi cung ứng hàng hóa, giúp việc mua hàng cũng như hợp tác được thuận lợi, bền vững.

Một Chủ Đầu tư uy tín, thường sẽ sẵn sàng trao đổi thông tin và yêu cầu hàng hóa đối với sản phẩm yêu cầu cho dự án của mình để được hỗ trợ giải pháp cung ứng đảm bảo các tiêu chí đưa ra được đáp ứng đầy đủ, hiệu quả và bền vững.
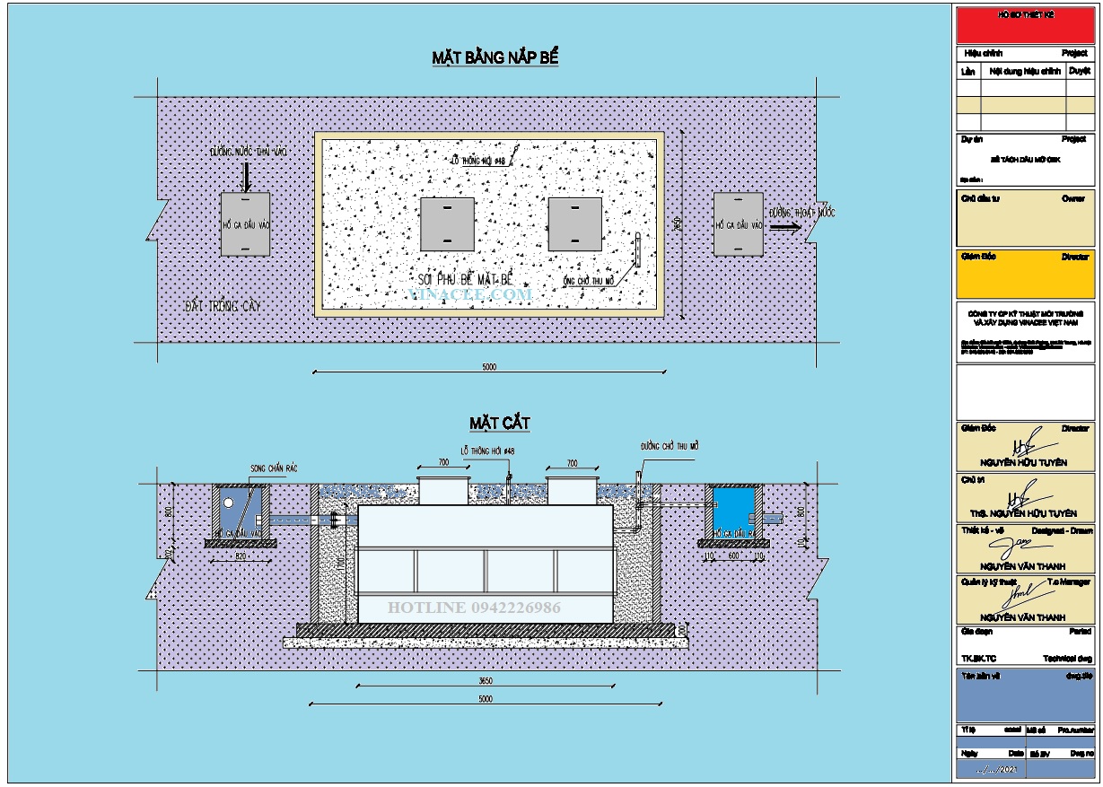
Mặt bằng thoát nước và định vị công trình (Xem thêm)
Với các hệ thống tách mỡ công nghiệp, có các thiết kế riêng biệt, việc nắm rõ được mặt bằng thoát nước, định vị công trình và quỹ mặt bằng bố trí cho công trình giúp Nhà tư vấn VINACEE hỗ trợ các dự án tốt hơn trong tính toán, lựa chọn thiết bị và phương án bố trí mặt bằng lắp đặt, sơ đồ đấu nối và các hạng mục phụ trợ.

Hàng trăm dự án đã được VINACEE hỗ trợ làm rõ mặt bằng thoát nước và thu gom nước thải, điều chỉnh dòng thải nhiễm dầu mỡ phù hợp hơn.
Yêu cầu kỹ thuật đối với sản phẩm bể tách mỡ
Về kỹ thuật, công nghệ, tiêu chuẩn hàng hóa: Ở đây, cả CĐT, Tổng thầu, nhà tư vấn VINACEE cần nắm rõ được các quy cách yêu cầu kỹ thuật đối với sản phẩm cần được cung cấp, chất liệu, dung tích, quy cách, nguyên lý hoạt đồng.

Tại đây VINACEE có thể hỗ trợ khách hàng tính toán lựa chọn dung tích, quy cách bể cũng như vật liệu phù hợp cho từng yêu cầu của dự án. Chỉ số công suất cũng là một tham số các bên cần nêu rõ trọng quá trình tư vấn và hợp tác.

Yêu cầu xuất sử đồi với hàng hóa mua sắm:
Xuất xứ hàng hóa cũng là một tiêu chí quan trọng; Một số dự án có yêu câu tiêu chuẩn cao hơn như EU, G7. trong khi đó một số dự án lại ưu tiên sản phẩm trong nước và nguồn cung ứng tại chỗ, chủ động, kịp thời.

Yêu cầu thông tin, xuất xứ hàng hóa đầy đủ sẽ đảm bảo định lượng được kế hoạch mua bán và chuyển giao, cũng như các khoản chi phí kèm theo
Địa điểm lắp đặt thiết bị, không gian lắp đặt và biện pháp thi công lắp đặt bể tách mỡ
Chi phí vận chuyển, lắp đặt cũng là một trong các thành phần cấu thành giá dịch vụ. Vì vậy thông tin về địa điểm bàn giao hoặc lắp đặt hệ thống cũng là thông tin quan quan giúp cho việc xây dựng dự toán một cách đầy đủ, thuận lợi.

Nếu bạn có thắc mắc về các thiết bị tách mỡ tự động cho dự án vui lòng liên hệ ThS Nguyễn Hữu Tuyên (ĐT/Zalo: 0942226986) để được hỗ trợ tốt nhất. HOẶC NHẬN CÁC MẪU THIẾT KẾ PHÙ HỢP VỚI DỰ ÁN CỦA BẠN TẠI ĐÂY
=================================================================
LIÊN HỆ ĐẶT HÀNG HOẶC NHẬN TƯ VẤN MIỄN PHÍ
KS. Trần Hồng Gấm (0982.309.689) hoặc ThS. Nguyễn Hữu Tuyên (0942226986)
Công ty CP Kỹ thuật Môi trường và Xây dựng VINACEE Việt Nam
Địa chỉ: Đội 1 Tả Thanh Oai, huyện Thanh Trì, TP Hà Nội
VPGD; Số 25, Phố Tân Mai, P Tân Mai, TP Hà Nội
Cơ sở 2: Số 2 Ngõ 1295, Giải Phóng, Hoàng Liệt, Q Hoàng Mai, TP Hà Nội.
VPGD: Tầng 2, Tòa nhà Số 25A, Tân Mai, Hoàng Mai, Hà Nội
Liên hệ: ĐT 02432013589, E- Mail: vinaceeco@gmail.com

Viết bình luận