Mẫu lắp đặt bể tách mỡ cho nhà hàng, các cơ sở trong phố có đường thoát nước kém
Bể tách mỡ là gì? Lợi ích khi lắp đặt bể tách mỡ cho các cơ sở kinh doanh dịch vụ ăn uống.
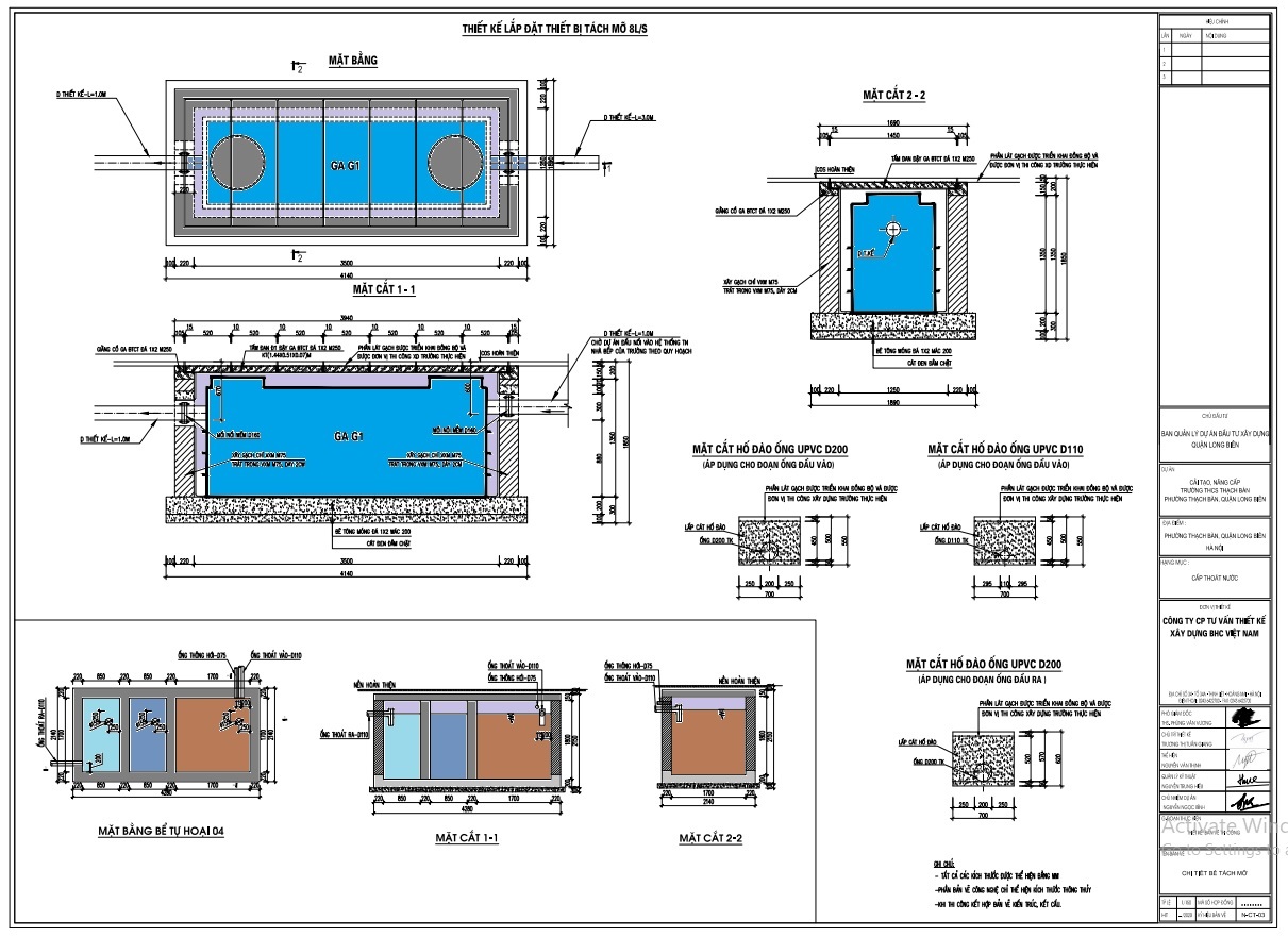
Bể tách mỡ là thiết bị dùng để tách dầu mỡ thừa sau quá trình sơ chế, nấu ăn và vệ sinh nhà bếp, nhà xưởng ra khỏi nước thải. Được bố trí dưới chậu rửa trong bếp ăn của gia đình, quán ăn, căn tin, nhà hàng, khách sạn hoặc sẽ được đặt chìm dưới lòng đất nhằm ngăn chặn dầu mỡ thừa dính bám gây tắc đường ống.

Tại các nhà hàng, các cơ sở kinh doanh dịch vụ ăn uống, bể tách mỡ quan trọng như thế nào?
Nếu như trước đây, dầu mỡ đều được xả thẳng ra hệ thống xử lý nước thải chung của thành phố thì từ thời gian này và về sau, tất cả đều được giữ lại bằng hệ thống tách dầu mỡ. Có thể sử dụng bể tách mỡ thủ công hoặc hệ thống tách dầu, mỡ tự động như.

Nhiều khách hàng của chúng tôi chia sẻ “Sau khi lắp thiết bị này thì lượng mỡ giữ lại qua thiết bị của công ty nên lượng nước mỡ của mình ít hơn, lượng nước thải ra cống chung của thành phố sạch hơn rất nhiều".

Vậy lắp đặt bể tách mỡ, bẫy mỡ như thế nào là hiệu quả, cùng xem các chỉ dẫn dưới dây của KS Trần Hồng Gấm nhé.




Kinh nghiệm lựa chọn và mua sản phẩm bể tách mỡ hiệu quả, chất lượng (xem chi tiết bể 30 lít cho chậu rửa đơn)
Hiện trên cả nước đã có nhiều nhà hàng, khách sạn chủ động lắp đặt hệ thống tách dầu mỡ này. Theo nguyên lý, hệ thống sẽ tự động giữ lại dầu mỡ, bùn và cả các chất cặn lắng trong nước thải trước khi đưa ra hệ thống thoát nước chung mà không tiêu hao điện năng hay các loại hóa chất xử lý.

Không những vậy, các đơn vị sử dụng còn có thể dễ dàng xử lý lượng dầu mỡ được giữ lại hàng tháng, giảm thiểu tác động đến môi trường.

Để mua được sản phẩm bể tách mỡ chính hãng, hiệu quả, hay tham khảo địa chỉ này nhé. Số 177 Đại La, P Đồng Tâm, Hà Bà Trưng, Hà Nội =>>> XEM CHI TIẾT
Công ty CP Kỹ thuật Môi trường và Xây dựng VINACEE Việt Nam
VPGD: Tòa nhà Ligcogi, Số 25 Tân Mai, Hoàng Mai, Hà Nội.
Showroom: Số 177 Đại La, P Đồng Tâm, HBT, Hà Nội.
NPP - Quốc Chính Số 36, Ngõ 264 Phố Định Công Hạ, P Định Công, Q Hoàng Mai, TP HN (0984849454)
Điện thoại hotline: 0942226986 /email: vinaceeco@gmail.com


Viết bình luận