Hướng dẫn thiết kế bể tách mỡ công nghiệp sử dụng cho các các dự án mới nhất 2023
Nếu bạn đang quan tâm để bể tách, lọc mỡ! cần đọc và hiểu rõ để có thể tính toán thiết kế hoặc lựa chọn một sản phẩm tách mỡ phù hợp, hiệu quả cho dự án, hay đọc hết bài viết này nhé, Link nhận mẫu thiết kế và Catalogue có ngay phía dưới:
Những khai niệm cơ bản về bể tách mỡ, thùng lọc mỡ
Bể tách mỡ là gì? Là thiết bị dùng để tách dầu mỡ thừa sau quá trình sơ chế, nấu ăn và vệ sinh nhà bếp, nhà xưởng ra khỏi nước thải. Được bố trí dưới chậu rửa trong bếp ăn của gia đình, quán ăn, căn tin, nhà hàng, khách sạn hoặc sẽ được đặt chìm dưới lòng đất. Nhằm ngăn chặn dầu mỡ thừa dính bám gây tắc đường ống.

Trong hệ thống xử lý nước thải, bể tách mỡ, thùng lọc mỡ thông minh có tác dụng tách bỏ lượng dầu mỡ khó phân hủy. Nhằm nâng cao hiệu quả của hệ thống xử lý nước thải.
Vì sao bạn cần quan tâm tới tính toán và thiết kế bể tách mỡ cho dự án
Để nâng cao hiệu quả sử dụng, các tính năng của bể tách mỡ cần có các phương pháp tính toán và thiết kế phù hợp, vừa giảm chi phí đầu tư sản xuất, vưa đảm bảo hiệu quả sử dụng.

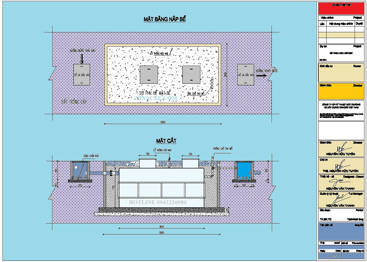
Thiết kế bể tách mỡ (tham khảo khi xây dựng công trình) XEM THÊM
Công ty CP Kỹ thuật Môi trường và Xây dựng VINACEE Việt Nam tự hào là đơn vị có uy tín, hoạt động lâu năm và đạt được nhiều thành công trong lĩnh vực thoát nước và xử lý nước thải. Với mong muốn áp dụng các công nghệ tiên tiến, thân thiện với môi trường và nhằm giảm thiểu tình trạng ách tắc hệ thống thoát nước do dầu mỡ gây ra và góp phần nâng cao chất lượng nguồn nước và môi trường sống cho người dân đô thị, cũng như việc vận hành các hệ thống thoát nước, xử lý nước thải tại các cơ sở, nhà máy công nghiệp được thực hiện một cách đầy đủ, hiệu quả VINACEE đã nghiên cứu, sản xuất và cho ra đời các sản phẩm thiết bị tách dầu mỡ thông minh.

Thiết bị tách dầu mỡ của VINACEE là sản phẩm thân thiện với môi trường được được hơn hai ngàn đối tác, khách hàng trong và ngoài nước trải nghiệm, áp dụng, sử dụng phổ biến tại Việt Nam.

Sản phẩm được nghiên cứu thiết kế theo các Tiêu chuẩn, chứng nhận ISO 9001:2015 - hệ thống quản lý chất lượng sản phẩm, quy định hiện hành của Nhà nước và sản xuất đáp ứng các tiêu chuẩn của Châu Âu, kiểm định chất lượng qua tiến hành lấy mẫu kiểm tra thực tế, được hơn hai ngàn khách hàng tiêu dùng và bình chọn là sản phẩm thân thiện với môi trường, sản phẩm được chứng nhận tiêu chuẩn cơ sở và được tặng Kỷ niệm chương vì sự nghiệp Khoa học và kỹ thuật Xây dựng năm 2017.

Thiết bị tách dầu mỡ có thể sử dụng tại bất cứ nơi có khả năng phát sinh dầu mỡ động/thực vật hoặc dầu mỡ khoáng như bếp ăn gia đình (tránh tắc cục bộ hệ thống thoát nước nhà bếp, gây ảnh hưởng đến các sinh hoạt của các hộ gia đình), các cơ sở kinh doanh dịch vụ gồm: nhà hàng, khách sạn, bếp ăn tập thể của các cơ quan, trường học, trung tâm thương mại, cơ sở chế biến thực phẩm, lò mổ, trạm xăng, cơ sở sửa chữa, bảo dưỡng xe, máy, gara ô tô, đường cao tốc, sân bay, … ĐỂ ĐẢM BẢO ĐIỀU ĐÓ, CHÚNG ĐỀU PHẢI ĐƯỢC THIẾT KẾ, TÍNH TOÁN VÀ KIỂM TRA ĐẦY ĐỦ.

Hãy cho chúng tôi biết nhu cầu của bạn nhé, cam kết 100% bạn sẽ thấy hài lòng.
=====================================================================
LH: CÔNG TY CP KỸ THUẬT MÔI TRƯỜNG VÀ XÂY DỰNG VINACEE VIỆT NAM
Địa chỉ: Đội 1 Tả Thanh Oai, huyện Thanh Trì, Thanh Phố Hà Nội
VPGD: Tòa nhà LICOGI số 25A, Tân Mai, Hoàng Mai, Hà Nội - ĐT 0982309689/Mss Vy.
Showroom 1: 177, Đại La. Đồng Tâm, Hai Bà Trung, TP Hà Nội ĐT: 0916345696
NPP - Quốc Chính Số 36, Ngõ 264 Phố Định Công Hạ, P Định Công, Q Hoàng Mai, TP HN (0984849454)

Viết bình luận