Hướng dẫn kỹ thuật lắp đặt bể tách mỡ công nghiệp
XU THẾ SỬ DỤNG BỂ TÁCH MỠ, LỌC MỠ TRONG TƯƠNG LAI (#thunglocmo)
Bước vào thời đại mở cửa, với các chính sách phát triển kinh tế của chính phủ Việt Nam dần đưa Việt Nam bước vào thời đại công nghiệp hóa, hiện đại hóa.Cùng với sự phát triển nhanh của đời sống, kinh tế, xã hội, nhận thức của cộng đồng về bảo vệ sức khỏe và vệ sinh môi trường cũng được cải thiện rõ rệt. Bên cạnh đó công tác quản lý môi trường, kiểm soát ô nhiễm ngày càng tiến bộ và có hiệu lực, dẫn đến việc ngày càng có nhiều khu công nghiệp, cơ sở sản xuất, khu dân cư…chú trọng đến việc đầu tư các hệ thống công trình và thiết bị xử lý nước thải ngày càng nhiều. Một bước quan trọng trong việc xử lý nước thải sinh hoạt hay công nghiệp để vừa tiết kiệm chi phí xử lý sự cố môi trường, nhân lực đó là lắp đặt thiết bị tách dầu mỡ trên hệ thống thoát nước trước khi nước được thoát vào hệ thống chung.

Lý do cần phải lắp đặt bể lọc mỡ:
Mỗi nhà máy sản xuất một loại mặt hàng khác nhau nên thành phần nước thải cũng khác nhau.
Hệ thống thoát nước thải sản xuất đổ chung với hệ thống thoát nước thải sinh hoạt, hệ thống thoát nước thải nhà bếp
Hiện nay ban quản lý các khu công nghiệp chỉ quản lý đầu vào hệ thống xử lý nước thải bằng cách hướng dẫn các đơn vị xả thải phải thực hiện các biện pháp kiểm soát đầu vào, ví dụ: Hệ thống nước thải nhà bếp xả thải lượng mỡ thải lớn vào hệ thống xử lý làm tắc hệ thống thoát nước của cả khu công nghiệp. Dầu mỡ là các chất hữu cơ khó xử lý làm giảm hiệu quả xử lý nước thải nói chung. Chính vì vậy nhà bếp của các khu công nghiệp buộc phải lắp đặt một hệ thống lọc dầu mỡ bằng bể lọc mỡ công nghiệp
Đặc biệt với chủ trương không quản lý được thì phạt bằng tiền. Ban quản lý các khu xử lý cũng rất mạnh tay với việc liên tục tăng mức phạt lên 10-15 triệu khi các đơn vij bị phát hiện để nước thải chứa dầu mỡ vào khu xử lý chung
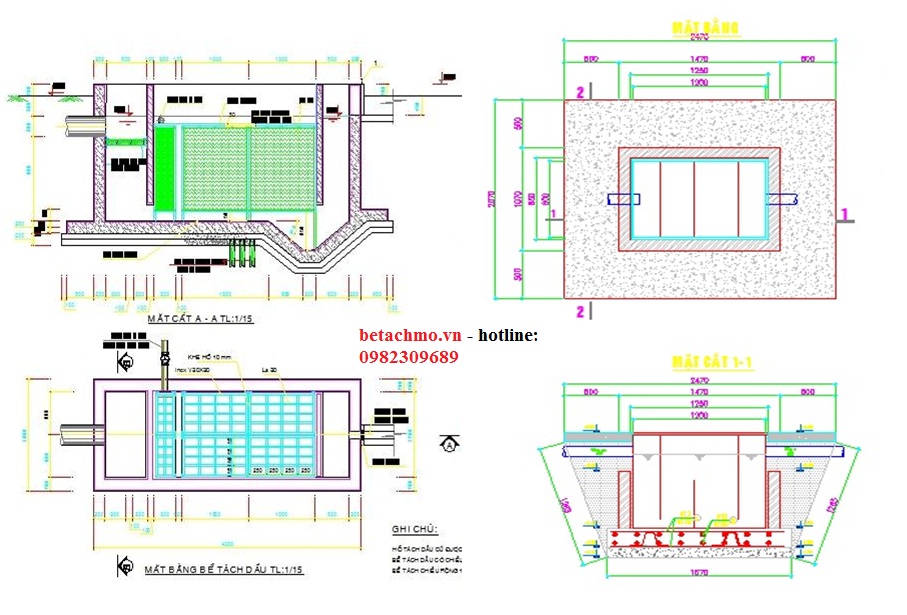
Thông số kỹ thuật bể lọc mỡ công nghệ
+ Xuất xứ: Inox Việt Nam, bảo hành 2 năm
+ Thân làm bằng inox 304, dày 1.0 ly, 1.2 ly. Bể lọc mỡ hoạt động nhờ tận dụng phương pháp đảo chiều dòng chảy từ nước.
+ Bể lọc gồm 3 hoặc 4 ngăn tùy vào lưu lượng nước thải: ngăn lọc rác, ngăn lọc mỡ và ngăn nước đã lọc dầu mỡ. Các ngăn có thể dễ dàng tháo rời để vệ sinh.
+ Kết cấu và kiểu dáng công nghiệp.
+ Kích thước: Tùy theo nhu cầu sử dụng mà bể có kích thước khác nhau.
Nguyên lý làm việc cơ bản của bể lọc mỡ công nghiệp
- Lắp đặt thiết bị lọc tách dầu mỡ ngay trên đường xả thải, nước thải sẽ chảy trực tiếp vào bể lọc mỡ, sau khi đi xuyên qua lớp lưới được thiết kế bên trong bể lọc, nhờ vậy mà cặn bẩn và tạp chất lướn như rau củ, rác thải lớn…. đều được giữ lại, không trôi vào đường thoát nước chính.
- Sau đó nước chứa dầu mỡ sẽ đi vào ngăn thứ 2 của bể tách, tại đây thời gian lưu nước cho phép đủ để dầu mỡ nổi lên mặt nước. Mỡ được xả van lấy ra theo định kỳ, còn phần nước được tách ra sẽ chảy ra ngoài theo đường ống dẫn.
Ưu điểm của bể lọc dầu mỡ công nghiệp:
- Công nghệ xử lý phù hợp với đặc điểm, tính chất của nguồn thải.
- Nồng độ ô nhiễm sau khi xử lý đạt quy chuẩn hiện hành.
- Thiết bị chiếm diện tích đất sử dụng tối thiểu
- Công trình thiết kế dạng modul, dễ mở rộng.
Vị trí lắp đặt bể lọc mỡ - Phương pháp thi công lắp đặt

Để đạt được hiệu quả tách mỡ tối ưu thì có 2 cách lắp đặt bể lọc mỡ:
Lắp đặt nổi ngay dưới bồn rửa nước
Ưu điểm: Thuận tiện cho quá trình rửa, vệ sinh bể, thu gom rác, dầu mỡ dễ dàng, Tiết kiệm được chi phí hút dầu mỡ.
Nhược điểm: Cần có diện tích ở trên mặt để lắp đặt
Lắp đặt chìm ở dưới đất
Ưu điểm: Tiết kiệm được diện tích.
Nhược điểm:Quá trình hút, vớt dàu mỡ, rác thải, vệ sinh bể gặp nhiều khó khăn. Quá trình hút dầu mỡ tự động thì cần bơmà Tiêu tốn điện năng, vận hành phức tạp.
Phương án thi công lắp đặt hệ thống:
Lắp đặt bể lọc dầu mỡ công suất 7,5 – 10 m3/ ngày, kích thước: L*B*H: 1,2*1*0,8 (m)
Vị trí lắp đặt: bể thu gom nước thải hiện tại
- Dọn dẹp, chuẩn bị mặt bằng đo đạc.
- Sử dụng mở rộng bể thu gom nước thải thành hố với kích thước 1,5*1,2*1,0 (m)
- Lắp đặt bể lọc mỡ vào vị trí đã đào
- Chạy thử bể lọc mỡ.
- Bàn giao bể thu tách dầu mỡ.
Cách vệ sinh bể tách mỡ
Bước 1:
- Đeo khẩu trang và gang tay vào trước khi vệ sinh bể tách mỡ.
- Chuẩn bị dụng cụ: chậu, thùng hoặc túi nilon để thug om dầu mỡ, rác thải.
Bước 2:
- Mở 4 khóa nắp bể tách mở
- Nhấc giỏ lọc ra ngoài và đổ chất thải rắn vào trong túi nilon
Bước 3:
Vét cặn, váng dầu mỡ để vào túi nilon.
Dùng nước xịt vào thành bể dùng cọ đánh sạch phía bên trong thành. Cần xối nước cả ở ống xả của bể cho đến khi bể bóng loáng màu thép đặc trưng của inox
Tráng lại bể bằng nước sạch nếu thấy cần thiết.
Bước 4:
- Hoàn thành công việc vệ sinh, kiểm tra lại các vách ngăn
- Lắp đặt lại vị trí ban đầu.
Thiết kế - hướng dẫn lắp đặt

Với mục tiêu “ Chất lượng hàng đầu – không ngừng cải tiến – giá cả phải chăng”, VINCEE chúng tôi phát triển từng ngày làm cho cuộc sống của chúng ta tốt đẹp hơn, môi trường xanh – sạch – đẹp.
Liên hệ chi tiết: KS. Nguyễn Thị Thu - Phòng R&D (TV miễn phí - Điện thoại 0982.309.689)
Công ty CP Kỹ thuật Môi trường và Xây dựng VINACEE Việt Nam
Địa chỉ: Đội 1 Tả Thanh Oai, Thanh Trì, Hà Nội
Cơ sở 2: Tầng 9, Số 66, Trần Đại Nghĩa, P. Đồng Tâm, Q.Hai Bà Trung, Hà Nội.
ĐT: 0974852736 , 0942226986
Email: thunguyeneehus@gmail.com / Vinaceeco@gmail.com


Viết bình luận