Bồn tách mỡ Composite - Thiết kế gọn nhẹ nên cách lắp đặt rất dễ dàng mà không tốn nhiều thời gian và chi phí
Bể tách mỡ Composite là một sản phẩm bể tách mỡ được làm từ vật liệu nhựa Composite (FRP) sử dụng tách dầu mỡ thừa sau quá trình sơ chế, vệ sinh ra khỏi nước thải.

Sản phẩm này có những ưu điểm, cấu tạo gì vượt trội so với bể truyền thống mà lại được nhiều người ưa chuộng đến vậy? VINACEE sẽ hé lộ cho quý khách trong bài viết này.
Những ưu điểm của bể tách mỡ composite mà không phải ai cũng biết
- Bể tách mỡ composite được thiết kế một cách gọn nhẹ nên cách lắp đặt rất dễ dàng mà không tốn nhiều thời gian và chi phí để lắp ráp. Ngoài ra, sản phẩm cũng dễ cho quá trình vận chuyển hay di dời vị trí nếu như vị trí bán dầu không còn được thuận tiện nữa.

- Được cấu tạo bởi vật liệu composite nên bền bỉ và chịu đựng được trong các môi trường khắc nghiệt như có thể lắp đặt tại cửa biển hay những khu vực có hóa chất độc hại, những nơi mà các vật liệu như sắt thép không thể lắp đặt được bì bị ăn mòn nhanh chóng
- Với cấu tạo nhỏ gọn nên dễ dàng được bố trí ở một vị trí thuận tiện nhất cho việc xử lý mà không chiếm không gian của các công trình. Sản phẩm cũng dễ dàng để thiết kế trên các bản vẽ để tạo ra sự tiện nghi.
- Với cấu tạo đơn giản nên giá sản phẩm rất rẻ nên ai cũng có thể sở hữu sản phẩm một cách dễ dàng.
- Bể tách dầu, mỡ composite hoạt động với năng suất cao trong thời gian liên tục với thời gian sử dụng lên đến 50 năm.
- Khi vận hành và hoạt động, sản phẩm không hề gây ra tiếng động ồn ào như những sản phẩm khác. Không tiêu tốn nhiều chi phí cho việc bảo dưỡng và sửa chữa sản phẩm.

- Công tác vệ sinh vô cùng đơn giản. Sản phẩm với thiết kế đơn giản nên việc làm sạch vô cùng gọn gàng mà không tốn nhiều thời gian.
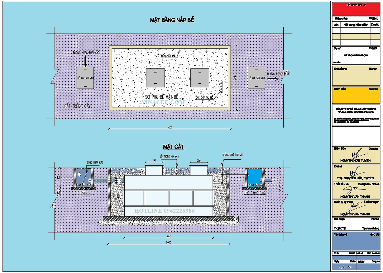
Cấu tạo của bể tách dầu mỡ composite
Dựa vào đặc tính riêng của lượng dầu mỡ nhỏ hơn nước sẽ nổi lên trên bề mặt. Chính vì vậy mà thiết kế bể composite sẽ bao gồm 3 ngăn có thể đặt chìm hoặc nổi theo điều kiện mặt bằng.

- Ngăn số 1 có thể lọc rác, có tay xích để đưa rác đất đá và loại bỏ hẳn các lớp dầu sơ cấp bằng lưới tách dầu.

- Ngăn số 2 là ngăn chính chứa dầu MKX sẽ được thu hồi từ một cho đến hai lần một tuần.
- Ngăn số 3 giúp thoát nước sau khi đã xử lý tách bỏ dầu mỡ ra môi trường hoặc hệ thống thoát nước.


Trên đây là những thông tin liên quan đến bể tách dầu composite. Với thị trường ngày càng văn minh và phát triển, con người có ý thức hơn về việc bảo vệ môi trường thì gia đình, nhà hàng,... nên sở hữu cho riêng mình một chiếc máy tách dầu.

Liên hệ: CT CP KỸ THUẬT MÔI TRƯỜNG VÀ XÂY DỰNG VINACEE VIỆT NAM
Địa chỉ: Đội 1 Tả Thanh Oai, Thanh Trì, Hà Nội
VPGD: Tòa nhà LICOGI số 25A, Tân Mai, Hoàng Mai, Hà Nội.
Showroom 1: 177, Đại La. Đồng Tâm, Hai Bà Trung, TP Hà Nội
ĐT: 0837145888, hotline: 0942226986
Email: Vinaceeco@gmail.com

Viết bình luận