Bể tách mỡ composite - Ưu điểm, mẫu thiết kế tham khảo cho dự án nhà hàng, bếp công nghiệp
Bể tách dầu mỡ hay còn có tên gọi khác như bể tách mỡ, bồn lọc mỡ là thiết bị có mục đích, tính năng tách dầu mỡ khỏi nước thải sau quá trình nấu nướng. Bể được bố trí dưới chậu rửa, sàn bếp hầu hết phổ biến trong căng tin, nhà hàng, khách sạn, trường học, nhà ăn công nghiệp để giảm hiện tượng dầu mỡ bám gây tắc đường ống, bảo vệ môi trường.

Thiết bị tách dầu mỡ dựa trên nguyên tắc tuyển trọng lực nhờ vào đặc điểm dầu mỡ nhẹ hơn nên nổi lên trên đước tách ra khỏi dòng nước thải và dẫn đến ngăn chứa mỡ.

Thiết bị tách dầu mỡ thông minh (thủ công) không dung điện ăng nên hoạt động không tiếng ồn, không tốn điện năng tiêu thụ nhưng vẫn mang đến hiệu quả cao (loại bỏ 98% dầu mỡ) phù hợp cho các cơ sở quy mô vừa và nhỏ. Bài viết này giới thiệu sâu hơn về bể tách mỡ Compsite để quý vị có góc nhìn tốt hơn khi lựa chọn sản phẩm có dự án
1. Khái niệm chung bể tách dầu mỡ composite
Bể tách dầu mỡ composite là thiết bị dùng để tách dầu mỡ ra khỏi nước thải nhiễm dầu mỡ. Bồn được dùng trong quy trình xử lý nước thải công nghiệp hoặc nước thải sinh hoạt; bố trí ở đầu hệ thống xử lý nước thải hoặc dưới chậu rửa trong bếp ăn gia đình, căng tin, nhà hàng, khách sạn, trung tâm thương mại… Bể có nhiều kích cỡ cho mọi nhu cầu hợp lý. Nhằm tách lượng dầu mỡ lẫn trong nước thải tránh bám vào đường ống gây tắc và loại bỏ lượng dầu mỡ khó phân hủy ra khỏi nước thải.

Nguyên lý hoạt động của thiết bị tách dầu mỡ là gạt bỏ mỡ nổi do trọng lượng riêng của dầu mỡ nhẹ hơn nổi lên trên, nên bể hoạt động không tiếng ồn và điện năng tiêu thụ, giá thành thấp.

Dầu mỡ trong sinh hoạt thải ra lâu ngày bám dính lên các đường ống thoát nước gây tắc nghẽn và sinh mùi hôi gây ô nhiễm môi trường. Dầu mỡ bám dính trong các trạm bơm làm giảm hiệu quả quá trình xử lý nước thải.
2. Cấu tạo bể tách dầu mỡ composite
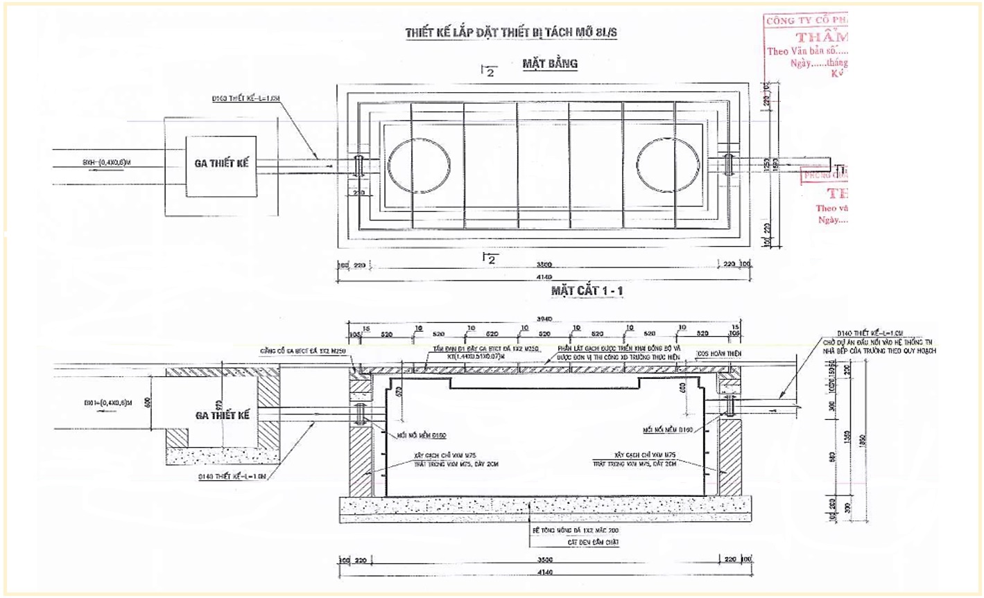
Bể tách dầu mỡ bao gồm 3 ngăn, có thể đặt chìm hoặc nổi theo điều kiện mặt bằng công trình, dự án.

– Ngăn 1: có lưới lọc rác, có tay xách để đưa rác, đất đá và loại bỏ lớp dầu sơ cấp bằng lưới tách dầu:
– Ngăn 2: đây là ngăn chính chứa dầu mỡ, sé được thu hồi từ 1 đến 2 tuần/lần
– Ngăn 3: thoát nước sau khi đã xử lý ra môi trường.

3. Nguyên lý hoạt động tách dầu mỡ của bể tách mỡ
– Nước thải chứa dầu mỡ chảy trực tiếp vào bể tách dầu mỡ, sau khi đi qua giá tách rác được đặt ở ngăn thứ nhất. Tại đây, rác thải, các cạn bã được giữ lại, loại bỏ dầu bằng lưới tách dầu
– Tiếp tục, nước từ ngăn 1 sẽ chảy sang ngăn 2, thời gian lưu đủ lâu cho phép dầu nổi lên trên bề mặt nước. Nước sau khi được loại bỏ hoàn toàn dầu, mỡ được đưa sang ngăn thứ 3 và được thải ra ngoài
– Phần dầu mỡ thu hồi được ở ngăn thứ 2 còn chứa một lượng nước nhỏ tiếp tục được tách bằng ngăn khác sau đó mới được thải ra môi trường.
4. Ưu điểm của cá bể tách dầu mỡ bằng composite
Quá trình nghiên cứu và hoàn thiện sản phẩm Bể tách mỡ của VINACEE cho hiệu quả loại bỏ dầu mỡ cao, chuyên dụng cho công nghiệp và dân dụng. Với nhiều dự án, việc dùng bể tách mỡ composite có thể tiết kiệm được nhiều chi phí hơn các vật liệu khác như Inox, nhựa PVC, đặc biệt các dự án trường học, bênh viện nhờ.
Ưu điểm bể tách mỡ composite FRP so với các vật liệu khác:
– Vật liệu tổng hợp Composite cốt sợi thủy tinh có độ bên cao, đặc biệt độ bền chống ăn mòn hóa chất, nước thải.
– Độ bền cao lên tới 50 năm.
– Gọn nhẹ dễ thao tác, vệ sinh và sửa chữa, lắp đặt.
– Khả năng chịu hóa chất tuyệt đối so với inox và nhựa.
– Có thể sử dụng môi trường ăn mòn cao: ngoài biển, hệ thống xử lý nước thải nguy hại…
– Có thể sản xuất bể với dung tích rất lớn với giá thành rẻ hơn rất nhiều so với các vật liệu khác.
5. Một số mẫu thiết kế bể tách mỡ công nghiệp cho dự án
Tại Việt Nam cung là đơn vị sản xuất và phân phối các Bể tách dầu mỡ FRP phục vụ cho dân dụng và công nghiệp với nhiêu loại kích thước khác nhau:

– Bể tách dầu, mỡ loại nhỏ: dùng cho hộ gia đình, nhà hàng nhỏ với dung tích bể từ 80 đến 200 lít;

– Bể tách dầu, mỡ công nghiệp: dùng cho các nhà hàng lớn, khách sạn, trung tâm thương mại, và các cung cư với lưu lượng chất thải có dầu mỡ nhiều. Dung tích từ 200 đến 25.000 lít (25m3), đáp ứng công suất sử dụng từ 200 đến 20.000 suất ăn/ngày (ƯU ĐẠI 2022: BỂ TÁCH MỠ 3,95M3 GIÁ CHỈ CÒN 26.500.000 VNĐ)
6. Niềm tin nơi khách hàng khi sử dụng sản phẩm bể tách mỡ
Dễ dàng nhận biết, thiết bị tách dầu mỡ của VINACEE là sản phẩm thân thiện với môi trường được được hơn 5000 (năm ngàn) đối tác, khách hàng trong và ngoài nước trải nghiệm, áp dụng, sử dụng phổ biến tại Việt Nam. Sản phẩm được nghiên cứu thiết kế theo các Tiêu chuẩn, chứng nhận ISO 9001:2015 - hệ thống quản lý chất lượng sản phẩm, quy định hiện hành của Nhà nước và sản xuất đáp ứng các tiêu chuẩn của Châu Âu, kiểm định chất lượng qua tiến hành lấy mẫu kiểm tra thực tế, được chứng nhận tiêu chuẩn cơ sở và được tặng Kỷ niệm chương vì sự nghiệp Khoa học và kỹ thuật Xây dựng năm 2017.

Để hiểu rõ hơn xin truy cập vào betachmo.vn hoặc liên hệ qua hotline: 0988.387.885 (Miễn phí) Công ty CP KT Môi trường và Xây dựng VINACEE Việt Nam, là đơn vị nghiên cứu, chế tạo và phát triển các dòng sản phẩm tách mỡ, dầu mỡ công nghiệp luôn cam kết đưa đến cho khách hàng sự lựa chọn tốt nhất, hoàn hảo nhất.
Sản phẩm tách dầu mỡ tương tự XEM TẠI ĐÂY
TƯ VẤN SẢN PHẨM CHO CÁC DỰ ÁN: KS. Nguyễn Thị Hiền (ĐT/Zalo: 0837145888)
CÔNG TY CP KỸ THUẬT MÔI TRƯỜNG VÀ XÂY DỰNG VINACEE VIỆT NAM
Số 2/1295: Giải Phóng, Hoàng Liệt, Hoàng Mai, Hà Nội
VPGD: Tầng 2, Tòa nhà LICOGI số 25A, P. Tân Mai, Q. Hoàng Mai, TP Hà Nội
Showroom: Số 177, phố Đại La, Đồng Tâm, Hai Bà Trưng, TP Hà Nội
Điện thoại hotline: 0942226986 /email: vinaceeco@gmail.com

Viết bình luận