Bể tách dầu thông minh Dsmart cho gara và nước nhiễm dầu tại các nhà máy thủy điện
Bể tách lọc dầu - Xử lý nước thải Gara, nước thải nhiễm dầu của các xưởng cơ khí, nước thải nhiễm dầu của tàu thuyền, nhà máy thủy điện theo cách đơn giản nhất mà vẫn bảo vệ môi trường.

Hàng trăn sản phẩm như vậy đã được VINACEE đưa tới tay khách hàng góp phần bảo vệ môi trường xung quanh.
Mẫu hước dẫn lắp đặt bể tách dầu đặt nổi (XEM THÊM)

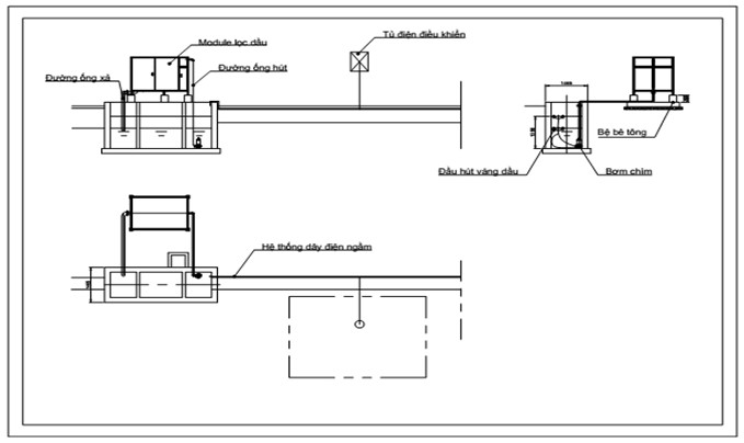
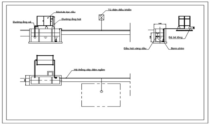
Mẫu bản vẽ hướng dẫn bể tách dầu gara đặt chìm.

+ Nước thải chứa dầu mỡ, dầu DO được thu gom trong các bể ngầm hoặc trên mặt đất.
+ Bùn đất bẩn, nhiễm dầu, và chất thải nhiễm dầu (chất thải nguy hại) sẽ được quản lý và xử lý theo các quy định nghiêm ngặt về môi trường.

+ Phần còn lại của nước thải rửa xe được bơm qua bể tách dầu tại chỗ của chúng tôi (VINACEE) để loại bỏ dầu và chất rắn lơ lửng.
+ Nước thải của hoạt động sau này sau khi đã được loại bỏ dầu mỡ và cặn bẩn có được dẫn qua hệ thống xử lý nước thải tập trung hoặc chúng tôi sẽ có Module lọc nước thải riêng cho bạn.

+ Phần nước sạch sau khi qua hệ thống lọc của chúng tôi được khử trùng và có thể tái sử dụng cho việc vệ sinh mà bạn cần đền.
+ Mọi chất thải rắn đều được xử lý hoặc tái sử dụng một cách cẩn thận - ví dụ như làm nhiên liệu đốt…

THÔNG SỐ BỂ TÁCH DẦU 2 BẬC DO 700 (DUNG TÍCH BỂ 700 LÍT) SỬ DỤNG PHÙ HỢP CHO CÁC GARA Ô TÔ QUY MÔ NHỎ.
- Kích thước: Dài x rộng x cao = 1100 x 850 x800 mm
- Vật liệu: Inox 304, 1 - 1,2mm (có 02 vách lọc dầu)
- Tiêu chuẩn sản xuất: ISO 9001:2015
- Nhà cung cấp: VINACEE Việt Nam
- Thời gian bảo hành: 02 năm

Hàng trăm dự án đã được VINACEE triển khai hỗ trợ khách hàng trong việc hoàn thành công trình bảo vệ môi trường và cấp giấy phép môi trường.

Công ty CP Kỹ Thuật Môi Trường và Xây Dựng VINACEE Việt Nam
- Địa chỉ: Đội 1 Tả Thanh Oai, Thanh Trì, Hà Nội
- VPGD: Tòa nhà LICOGI số 25A, Tân Mai, Hoàng Mai, Hà Nội.
- Showroom 1: 177, Đại La. Đồng Tâm, Hai Bà Trung, TP Hà Nội
- ĐT: 0837145888, hotline: 0942226986
Tạp chí môi trường viết về Bể tách mỡ VINACEE Xem thêm TẠI ĐÂY
Tạp chí Xây dựng về bể tách mỡ VINACEE: Xem thêm TẠI ĐÂY

Viết bình luận