Bản vẽ bể tách mỡ và bể tách mỡ tự động - Mẫu tham khảo cho kỹ sư dự án (mới 2020)
Ngày nay, bể tách mỡ đang là thiết bị trở nên quan trong trọng đặc biệt với các công trình xây dựng cũng như tham gia bảo hệ hệ thống đường ống thoát nước, bảo vệ môi trường, mang đến sự tiện lợi cho cuộc sống cũng như thức đẩy quả trình phát triển bền vững - Đô thị hóa, công nghiệp hóa, hiện đại hóa và bảo vệ môi trường.

Với hơn 18 năm kinh nghiệm trong lĩnh vực công nghệ môi trường, kỹ thuật môi trường, cấp thoát nước và xử lý nước thải nhóm chuyên gia VINACEE xin được chia sẻ một số kinh nghiệm thực tiễn về bể tách mỡ cũng như các mẫu bản vẽ có sẵn để các Kỹ sư dự án tham khảo cho công trình. Hãy cùng xem và đăng ký nhận thêm file bản vẽ tại cưới bài viết nhé. XEM THÊM THÔNG TIN ĐƠN VỊ

1. Bể tách mỡ ba ngăn là gì? Có tác dụng như thế nào?
Chúng ta đều biết, 90% hiện tượng tắc nghẽn đường ống đều do dầu mỡ đông bám, tích tụ lâu ngày sinh ra; Do đó bể tách mỡ chính là thiết bị dùng để tách dầu mỡ thừa sau quá trình sơ chế, nấu ăn, quá trình vệ sinh nhà bếp, nhà xưởng ra khỏi nước thải. Bể tách mỡ thường được bố trí dưới chậu rửa trong bếp ăn của gia đình, quán ăn, căng tin, nhà hàng, khách sạn hoặc sẽ được đặt chìm dưới lòng đất. Nhằm ngăn chặn dầu mỡ thừa dính bám gây tắc đường ống, bảo vệ công trình và bảo vệ hệ thống thoát nước công cộng.

2. Bể tách mỡ có nguyên lý hoạt động như thế nào
Nước thải từ căng tin, nhà ăn, bếp nấu của nhà hàng, khách sạn, bếp ăn công ty có chứa một lượng dầu, mỡ tương đối lớn sẽ được đưa vào ngăn chứa thứ nhất thông qua sọt rác được thiết kế bên trong, cho phép giữ lại các chất bẩn như các loại thực phẩm, đồ ăn thừa, xương hay các loại tạp chất khác...có trong nước thải. Chức năng này giúp cho bể tách mỡ làm việc ổn định mà không bị nghẹt rác.

Sau đó nước thải đi sang ngăn thứ hai, ở đây thời gian lưu dài đủ để mỡ, dầu nổi lên mặt nước. Còn phần nước trong sau khi mỡ và dầu đã tách ra lại tiếp tục đi xuống đáy bể và chảy ra ngoài. Lớp dầu mỡ sẽ tích tụ dần dần và tạo lớp váng trên bề mặt nước, định kỳ chúng ta xả van để loại bỏ lớp dầu mỡ. Nước thải sau bể tách dầu mỡ sẽ được đưa về khu xử lý nước thải sinh hoạt của nhà hàng hay khách sạn đấy.

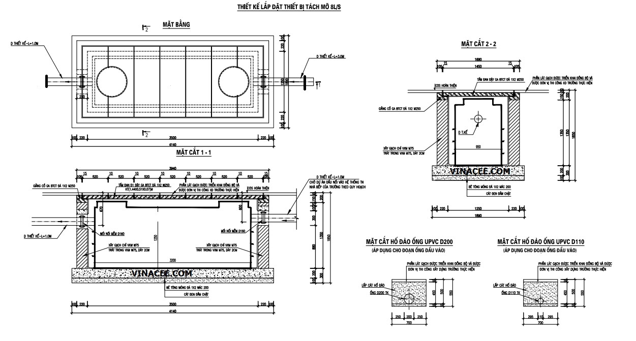
3. Bể tách mỡ có cấu tạo và hoạt động như thế nào? NHẬN BẢN VẼ
Nhìn chung thì bể tách dầu mỡ hay thiết bị lọc mỡ thường có 3 ngăn: Ngăn chứa rác, ngăn lọc mỡ và ngăn chưa nước sạch. Ngoài ra theo nhu cầu xử dụng của khách hàng mà chúng tôi có thể thêm các giải pháp cấu tạo nhằm đáp ứng được nhu cầu sử dụng của đối tác đối với các dự án có yêu cầu cao hơn.

– Ngăn lược rác: Nước từ các bồn rửa sẽ chảy trực tiếp vào ngăn 1. Tại đây, giỏ lọc làm nhiệm vụ giữ lại chất thải lớn như: thức ăn thừa, vụn rau quả,…(cần thiết từ 2 - 5 ngày nên bỏ rác, vụn thức ăn đi một lần)

– Ngăn tách mỡ: Dòng nước thải từ ngăn 1 có lẫn dầu mỡ theo hướng dòng qua ngăn 2. Lớp mỡ nhẹ nổi lên trên bề mặt, nước thải tiếp tục chảy sang ngăn 3 đi ra ngoài. Ngăn 2 có chức năng tách và giữ lại phần lớn lượng dầu mỡ trong nước thải (Việc thu bỏ lớ mỡ có thể được tiến hành 15 - 20 ngày đối với bể tách mỡ gia đình, từ 30 - 40 ngày đối với bể tách mỡ nhà hàng và công nghiệp).

4. Mẫu bản vẽ bể tách mỡ cho các dự án
Hiện nay trên thị trường có rất nhiều đơn vị cung cấp bẫy lọc mỡ, để mua được sản phẩm có chất lượng tốt, bạn nên chọn các đơn vị có nhiều năm kinh nghiệm và uy tín lâu năm, các thiết kế bài bản, khoa học, các sản phẩm đã được kiểm nghiệm. Bạn nên tránh mua ở những cơ sở bán sản phẩm không rõ nguồn gốc xuất xứ hay giá quá rẻ so với trên thị trường.

Tại Việt Nam - VINACEE luôn tự hào là đơn tiên phong đi đầu trong nghiên cứ thiết kế, thực nghiệm các sản phẩm bể tách mỡ một cách bài bải và cải tiến không ngừng để đáp ứng như cầu thực tiễn của khách hàng.

Các nghiên cứu thực nghiệm của VINACEE được đánh giá, đo đạc kiểm chứng theo các chỉ dẫn tiêu chuẩn VIỆT NAM (MẪU BẢN VẼ)







Viết bình luận